Apartment in Palisades Tahoe (Olympic Valley), CA
Reasons to book
About this apartment rental
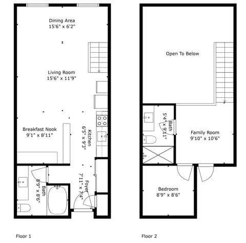
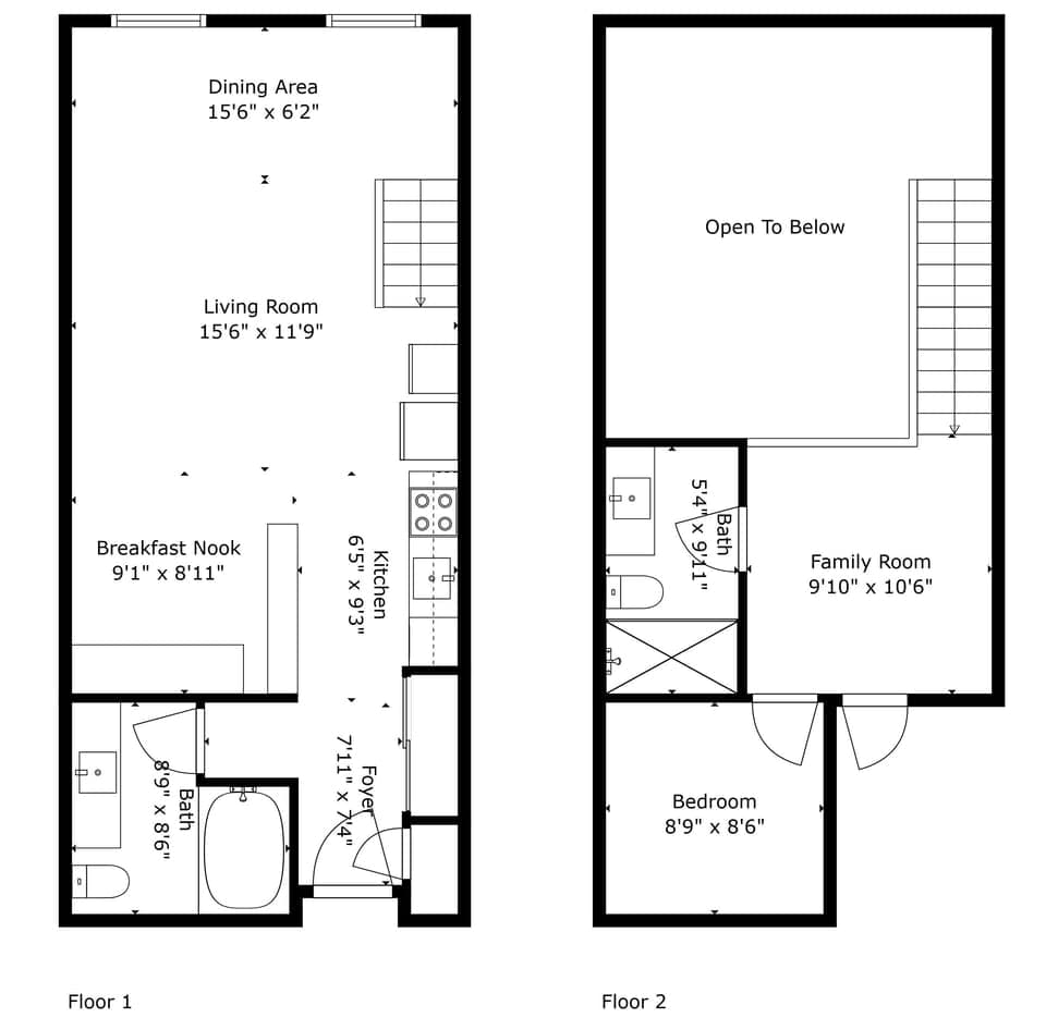
• 800 square feet with two sleeping zones, two bathrooms and an open living space with kitchenette, all in a two-story open studio condo.
• Downstairs is a dining area, kitchenette, Murphy bed sleeping zone, bathroom and living space with alpine views.
• The living space has an oversized wraparound sofa, coffee table, television and DVD player, dresser, and dining area that seats four.
• Upstairs is a queen bedroom with door for privacy, dresser, and sleeper sofa in open loft space with television and DVD player. There is also a second full bathroom.
• The upgraded kitchenette is upgraded with stone counters, stainless steel appliances, cooking utensils and a full refrigerator, dishwasher, microwave, coffee maker, toaster, toaster oven, and stove top. There is a full oven.
• There are two private bathrooms, upstairs and downstairs. The lower-level bathroom has an oversized tub/shower. Upstairs bath has a standing shower.
• The Studio Loft condominium accommodates 3 to 6 people.
Escape to this two-story newly upgraded Studio Loft where you can be immediately on the slopes or immediately on the trails with all the comforts of home! This sunny two-story Palisade Tahoe Lodge condominium is a great gathering zone for all four seasons.
With two full bathrooms, two queen beds and additional sleeper sofas, you can spread out and relax. Enjoy the benefits of a four-season location and steps from the Village at Palisades Tahoe with shopping, dining and local entertainment!
The refreshed space has a modern tile floor in the upgraded kitchenette area, which features stone countertops and all stainless steel appliances. Equipped with two full size refrigerators, dishwasher, coffee maker, toaster, microwave, stovetop and full oven, you’ll be able to whip up your culinary favorites in this home-away-from-home!
The comfortable space is equipped with two sleeping zones – a Murphy bed on the first floor that you can fold up and down as needed, and one queen size bed upstairs in the second floor loft. The first-floor sleeping zone is partitioned from the living room space by a large bureau.
The living room space is inviting with its big windows and courtyard view of Tahoe pines. This zone has a large and very inviting wraparound sofa that you’ll want to sink yourself into!
The dining table, coffee table, television and DVD player make this a great gathering spot to enjoy apres beverages.
Upstairs in this condo you have even more room. There is a sleeper sofa, television and DVD player, and dresser in the open loft area. The bedroom with a plush queen bed offers a tranquil retreat from the group.
The condo has two fully upgraded modern bathrooms. The downstairs bathroom has an oversized tub, and the upstairs has a standing shower. The bathrooms are conveniently located on each floor, making it easy for everyone to prepare for their mountain adventures in newly refreshed spaces.
Guests will enjoy the on-site amenities at ski-in/ski-out Palisades Tahoe Lodge, such as the outdoor swimming pool, indoor and outdoor hot tubs, indoor sauna and steam room, and very popular ping pong room! You are located just steps from 42 resort chair lifts, iconic KT22, and the base-to-base gondola that connects you to another nearby local ski resort.
If snow tubing, snowshoeing or Nordic (cross-country) skiing are of interest they are all nearby. Summer grants easy access to the hiking trails, nearby biking, Lake Tahoe beaches and boating, or champion – and quite scenic – North Lake Tahoe golf courses.
Adventures abounds at Palisades Tahoe and Studio Loft condo #356 is the perfect home base for your mountain getaway!
Your rental is a contract for a single vacation rental condo, with one owner in a multi-floor property. We are unable to reassign guests and adhere to all stated cancellation policies.
❄️Planning your winter adventures?
We’re thrilled to share exclusive discounts from our local partners!
Guests of Palisades Tahoe Lodge Rentals will enjoy 20% off regularly priced rentals at The Inn Shop, right in the heart of Palisades Tahoe Village. Within 24 hours of making your reservation, you’ll receive a message with easy online instructions to reserve your gear for quick, hassle-free pickup—so you can spend less time waiting and more time on the slopes!
🎿 No Ikon Pass? No Problem!
Your stay includes exclusive Palisades Tahoe partner perks - enjoy savings on lift tickets, rentals, lessons, and more:
• Lift Tickets: Up to 40% off Sun–Fri, 30% off Sat, 20% off holidays
• Rentals & Lessons: 10–15% off (no restrictions)
• Sightseeing (Aerial Tram, Funitel & Gondola): 30% off
• Learn to Ski/Ride Package: $198 at Alpine (AM or PM)
• Tubing: 20% off Mon–Fri
• Food & Beverage Vouchers: $21 cost / $24 value
Blackout Dates: Dec 27–Jan 3 • Jan 17–18 • Feb 14–16
Reservations are required on weekends and holidays, but not needed on weekdays or after 1 p.m.
Book early - availability changes fast!
PLEASE NOTE: Unless you reserved a condominium equipped with a portable Air Conditioning unit, your condominium DOES NOT have Air Conditioning.
Parking is available for vehicles under 90 inches tall in the covered garage. Guests with oversized vehicles or trailers are responsible for securing their own off-site parking.
**When Palisades Tahoe Resort is open with sufficient snow, Palisades Tahoe Lodge offers true Ski-in/Ski-out access to world-class terrain. Mountain conditions, lift operations, and opening or closing schedules fluctuate with weather and are determined solely by Palisades Tahoe Resort – a different company altogether. Palisades Tahoe Lodge Rentals and Granite Peak Management do not oversee mountain operations. Refunds or re-booking are not available for weather related travel issues or resort closures.




































