Apartment in Lower Grand Lagoon, FL
Reasons to book
About this apartment rental
For family fun activities, enjoy nearby mini golf, go-karts, Shipwreck Island, Wonderworks, Ripley's, the PCB Zoo, charter boats, fresh seafood, local shops, and ice cream at Hershey's (our favorite ice cream joint). Sugar Beach is also located just 1/2 a mile from the Signal Hill Golf Course, 1 mile from major grocery stores, and within walking distance to many restaurants, coffee and ice cream shops, the PCB winery, many activities and so much more.
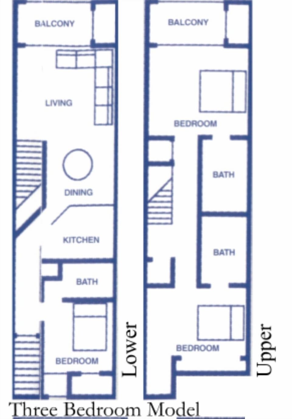
This spacious and relaxing second-floor two-story 3bed/3bath unit boasts a fully equipped kitchen that includes a fridge, stove & oven, dishwasher, microwave, regular coffee maker (coffee filters included), Keurig, griddle, toaster, blender, baking and pizza pans, crockpot, pots and pans, dishes, and all the utensils you need for cooking. Brand new sliding doors and windows, flooring, washer/dryer combo, and more!
The unit has 1 bed/1 bath downstairs (King Bed), and 2 beds/2 baths upstairs. Upstairs Master includes a king bed. The second room upstairs includes 2 double beds and 1 twin bed. Each bedroom has a TV and a ceiling fan (additional fans provided), ample amount of extra pillows, and an additional set of linens and extra blankets. You can find the hair dryer, iron, and ironing board in the upstairs master.
The living room is furnished with a sectional sofa with a pull-out to provide additional sleeping space and has a flat screen tv with cable and HBO and a DVD player (bring your own movies). In the evenings or on rainy days the family can enjoy a variety of board games, puzzles, books, dominos, and cards we have stocked to keep the fun going - and don't forget about the free WIFI. And if you feel like doing laundry, there is a brand new washer/dryer combo in the unit.
Enjoy the mornings drinking coffee and relaxing out on either of the two covered private balconies with lake and gulf views. Balconies are located off of the living room on the first floor and off of the master bedroom on the second floor. This family-friendly complex offers a great walking path around a lake stocked with koi (no fishing) and turtles. Feeding dispensers have been recently added to purchase fish/turtle food. Stay busy enjoying the lighted tennis and pickleball courts, shuffleboard, a designated grilling area with picnic tables (grilling utensils provided in the unit), and gated beach access with rinse stations. Also provided are an abundance of sand toys, a beach umbrella and wagon, and beach chairs. This unit also comes with beach chair service so enjoy 2 chairs and an umbrella down at the beach! You can enjoy playing ping pong in the clubhouse or relax outdoors by the gulf front pool. (Beach towels not provided)
We are ready for you to bring your Good Vibes to Sugar Beach and enjoy all that Panama City Beach has to offer!
~Things to Note
*No Elevators, so no long waits! - Park right in front of your unit!
*No crossing the street to access the beach
*No smoking and no pets
*Beach service provided - 2 beach chairs and 1 umbrella
*Please ask about snowbird / monthly winter rates. A 2 night minimum stay is required except during Summer. The minimum required stay between Memorial Day week and the week after Labor Day is 7 nights.
*Sugar Beach Owners Association requires the primary renter to be 25 and stay in the unit.
Parking Passes for each vehicle is required - currently $35 but increases to $37 beginning June 1, 2025.
*Check in time is 4:00pm CST
*Check out time is 10:00am CST
- Early check-in or late check-out out available if cleaning time permits for a $25 fee per request due to high demand/requests - Please confirm with owner ahead of time.





