Apartment in Bad Hofgastein
Reasons to book
About this apartment rental
A short distance from skiing, cycling, and more, this family-friendly apartment lets you experience it all. Gastein Ski Resort and Graukogel Cable Car are just a short walk away, so leave your car at the property, which offers covered onsite parking. If you're looking to expand your horizons and see other nearby locales, you can catch a train at Bad Gastein Station, a short 13-minute walk away.
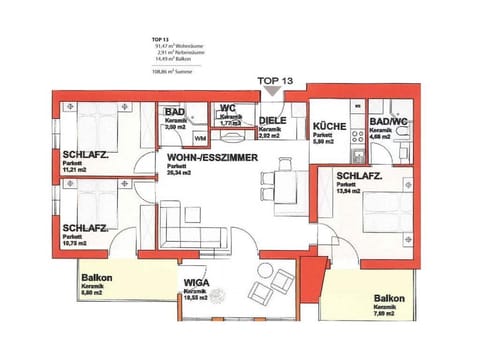
A living room and a BBQ grill are featured at this 3-bedroom, 1-bathroom rental. Connect to the WiFi, or get cozy in front of the cable/satellite TV. Bathroom amenities include towels, toilet paper, and soap. Prepare a home-cooked meal in the kitchen, complete with an oven, a stovetop, and a refrigerator, as well as a coffee maker, an electric kettle, and a microwave. And there's access to laundry facilities, so you can even pack a bit lighter. Other amenities include bed sheets and heating.







![Holiday Home Exterior [winter]](https://vr-thumbs.vacationrenter.com/480/vrbo/110953540/0fb1de.jpg)





![Holiday Home Exterior [winter]](https://vr-thumbs.vacationrenter.com/480/vrbo/110953514/30ccdf.jpg)



![Holiday Home Exterior [winter]](https://vr-thumbs.vacationrenter.com/480/vrbo/110953537/a9a512.jpg)














![Holiday Home Exterior [winter]](https://vr-thumbs.vacationrenter.com/480/expedia/102426821/0a62c4.jpg)



