Sandtuary - Opulent 8 BR Oceanfront with Elevator, Hot Tub - Community Pool!

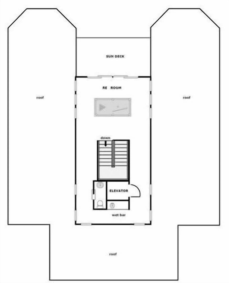
Top Floor Sun Deck off Rec Room
Sandctuary Streetside Exterior
Sandctuary
Washer & Dryer on 2nd Floor
1st Floor Oceanfront King Suite II
Don't miss out! Price and availability may change

House in North Topsail Beach

22 guests · 8 bedrooms · 9 baths

Reasons to book

Top-tier experienceA high end property in this area
Book with confidenceWe partner with the top travel sites so you know you're getting a great deal on the perfect rental
Includes essentialsFree WiFi/internet, Air conditioning, Pool and more

About this house rental

This beautifully decorated 8 bedroom, 8 bath oceanfront home located in Hampton Colony is ready for you to enjoy. Fully equipped for your entire families enjoyment, this home offers 3 levels of oceanfront living with space for everyone to enjoy their vacation. The open floor plan in the main living room makes it easy to take in the breathtaking views of Topsail Island. Walk out of the living room and enjoy the spacious sundeck with a hot tub and steps that leads you right to the beach! Hampton Colony also features a community pool for you to enjoy!

Sweet Dreams: *Linens (bed/bath) are not included!

There are, two bedrooms which are pyramid bunk rooms (twin over double), the others being King bedrooms. Every interior shower is a tiled spa shower and there are two jetted and a steam shower for evening relaxation

Amenities

Central air/heat
8 cable TVs (LR 65" screen), 3 DVD players
Wireless Internet
Full kitchen with 2 dishwashers & microwave
Washer/Dryer
Hot Tub
Ceiling fans
Elevator
Three Oceanfront decks with deck furniture and two sound side decks.

Location :

Your beach rental is located in North Topsail Beach approximately 8.1 miles north of the Surf City high rise bridge. You’ll love the peace and quiet here! Visit the Sea View pier or drive to nearby Surf City or Snead’s Ferry (just off the island) to visit restaurants and shops. Be sure to visit some local attractions such as the Karen Beasley Sea Turtle Hospital and the Missiles and More Museum, which tells the story of our island’s past.

Additional Property Info:

Community Pool - open from Memorial Day to end of September (dates subject to change based on weather and HOA)
No Smoking
No Pets
Parking notes: Parking is available for 10 vehicles
Unfortunately, early check in is not available at this property.

Trip Preparation:

Rental homes with Ward Realty all have minimum standards to make your stay be as close to home away from home as possible. All our rentals include fully equipped kitchens, basic small appliances (microwaves, coffee makers, toasters, blenders), pillows/comforters/bedspreads, television(s), central heating/air, iron/ironing board and much more! Check our website for a helpful list of what to bring with you to your vacation rental. Please note that this vacation rental does not come with sheets or towels. You may bring your own or rent them through Ward Realty.

Disclaimer: Photos displayed on this website are intended to provide a general representation of our vacation rental properties and the surrounding areas. While some amenities may be pictured, they are for display purposes only. Only those amenities listed on the website description, not in photos, are available. While we strive to keep all images accurate and up to date, furnishings, décor, and amenities may change over time and may vary slightly from what is shown. Seasonal differences, weather conditions, and lighting may also affect the appearance of the property. We do our best to present each rental honestly, but we cannot guarantee that every detail will be exactly as depicted. If you have specific questions or requirements, please contact us directly before booking.

Amenities at Sandtuary - Opulent 8 BR Oceanfront with Elevator, Hot Tub - Community Pool!

Free WiFi/internet
Air conditioning
Pool
Non-smoking
TV
Coffee/tea maker
Refridgerator
Kitchen
WiFi/Internet
Microwave
Dishwasher
Washing machine
Dryer
No pets allowed
Oven
Stove
Laundry services
Fireplace
Sofa bed

Map of North Topsail Beach


$$$$
vrbo logo

FAQs

Is parking included with this house?

Parking is not specified as an available amenity at Sandtuary - Opulent 8 BR Oceanfront with Elevator, Hot Tub - Community Pool!. For more information, we encourage you to contact the property about where to park.

Is there a pool at this house?

Yes, a swimming pool is available for use at Sandtuary - Opulent 8 BR Oceanfront with Elevator, Hot Tub - Community Pool!. Enjoy the water!

Is Sandtuary - Opulent 8 BR Oceanfront with Elevator, Hot Tub - Community Pool! pet friendly?

Unfortunately, this house is not pet-friendly. Try searching again and filter for "Pets Allowed"

What amenities are available at Sandtuary - Opulent 8 BR Oceanfront with Elevator, Hot Tub - Community Pool!?

We found 19 amenities for this rental. This includes free wifi/internet, air conditioning, pool, non-smoking, and tv.


Explore similar stays in North Topsail Beach

Explore all stays