The Country Crab - 4BR Home, Elevator, Pet Friendly!

Sound View from Front Covered Porch
1st Floor Hall Bathroom with Tub
Top Floor Back Bedroom with King Bed
Top Floor Back King Bedroom III
1st Floor Back Bedroom - Queen Bed
Don't miss out! Price and availability may change

House in North Topsail Beach

11 guests · 4 bedrooms · 3 baths

Reasons to book

Great for petsBring all your friends and family, even the furry ones
High-end valueWell priced for this area
Book with confidenceWe partner with the top travel sites so you know you're getting a great deal on the perfect rental

About this house rental

It's time to recharge at this gorgeous new construction home featuring 4 bedrooms (2 master suites) and 3 bathrooms. Perfect for up to 11 family members and up to two dogs, spend time on the covered porches, and relax in style. Take a short stroll to the beach or use the convenient location to drive to shops, restaurants and more! There is no reason to be crabby while staying at The Country Crab!

Sweet Dreams:
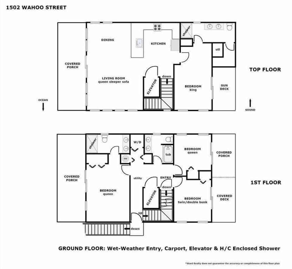
Top Floor Back Bedroom - King Bed, access to private sun deck, TV, en suite bathroom with shower
1st Floor Front Bedroom - Queen Bed, access to private covered porch, TV, en suite bathroom with shower
1st Floor Back Bedroom - Queen Bed, access to covered deck/porch, TV, bathroom with tub/shower adjacent
1st Floor Back Bedroom - Twin/Double Bunk Bed, access to covered deck/porch, TV, bathroom with tub/shower adjacent
Queen Sleeper Sofa in Living Room

Amenities:
Central Heat & Air
Keyless Entry
5 Smart TVs with Cable App
Wireless Internet
Full Kitchen including Dishwasher, Microwave
Washer/Dryer
Elevator
EV Charging Plug
Ceiling Fans
Enclosed Outdoor Shower with Hold/Cold Water
Carport with Wet Weather Entry
3 Covered Porches & 1 Sun Deck
Deck Furniture

Additional Property Information:

Smoke Free! No smoking anywhere on the premises
Dog Friendly! Max 2 Dogs allowed; Sorry, cats not allowed
Community Day Dock – The community boat dock area is for loading and unloading only. Boats cannot be left at the dock for any length of time.
Short Stroll to Beach Access across Island Drive and to the south of 196 Seashore Drive.
Linens (bed and bath) are not included.

Trip Preparation:

Rental homes with Ward Realty all have minimum standards to make your stay be as close to home away from home as possible. All of our rentals include fully equipped kitchens, basic small appliances (microwaves, coffee makers, toasters, blenders), pillows, comforters/bedspreads, television(s), central heating/air, iron/ironing board and much more! See our website for a helpful list of what to bring with you to your rental. Please note that this home does not come with sheets or towels. You may bring your own or rent them through Ward Realty.

Disclaimer: Photos displayed on this website are intended to provide a general representation of our vacation rental properties and the surrounding areas. While some amenities may be pictured, they are for display purposes only. Only those amenities listed on the website description, not in photos, are available. While we strive to keep all images accurate and up to date, furnishings, décor, and amenities may change over time and may vary slightly from what is shown. Seasonal differences, weather conditions, and lighting may also affect the appearance of the property. We do our best to present each rental honestly, but we cannot guarantee that every detail will be exactly as depicted. If you have specific questions or requirements, please contact us directly before booking.

Amenities at The Country Crab - 4BR Home, Elevator, Pet Friendly!

Free WiFi/internet
Air conditioning
Non-smoking
Pets allowed
TV
Coffee/tea maker
Refridgerator
Kitchen
WiFi/Internet
Microwave
Dishwasher
Washing machine
Dryer
Patio
Kitchenware
Oven
Stove
Laundry services
Sofa bed

Map of North Topsail Beach


$$$$
vrbo logo

FAQs

Is parking included with this house?

Parking is not specified as an available amenity at The Country Crab - 4BR Home, Elevator, Pet Friendly!. For more information, we encourage you to contact the property about where to park.

Is there a pool at this house?

We didn’t find pool listed as an amenity for this house. It may be worth double checking if a pool is important for your stay.

Is The Country Crab - 4BR Home, Elevator, Pet Friendly! pet friendly?

Yes! This house is pet-friendly. For more information, we recommend contacting the booking provider about animal policies.

What amenities are available at The Country Crab - 4BR Home, Elevator, Pet Friendly!?

We found 19 amenities for this rental. This includes free wifi/internet, air conditioning, non-smoking, pets allowed, and tv.


Explore similar stays in North Topsail Beach

Explore all stays