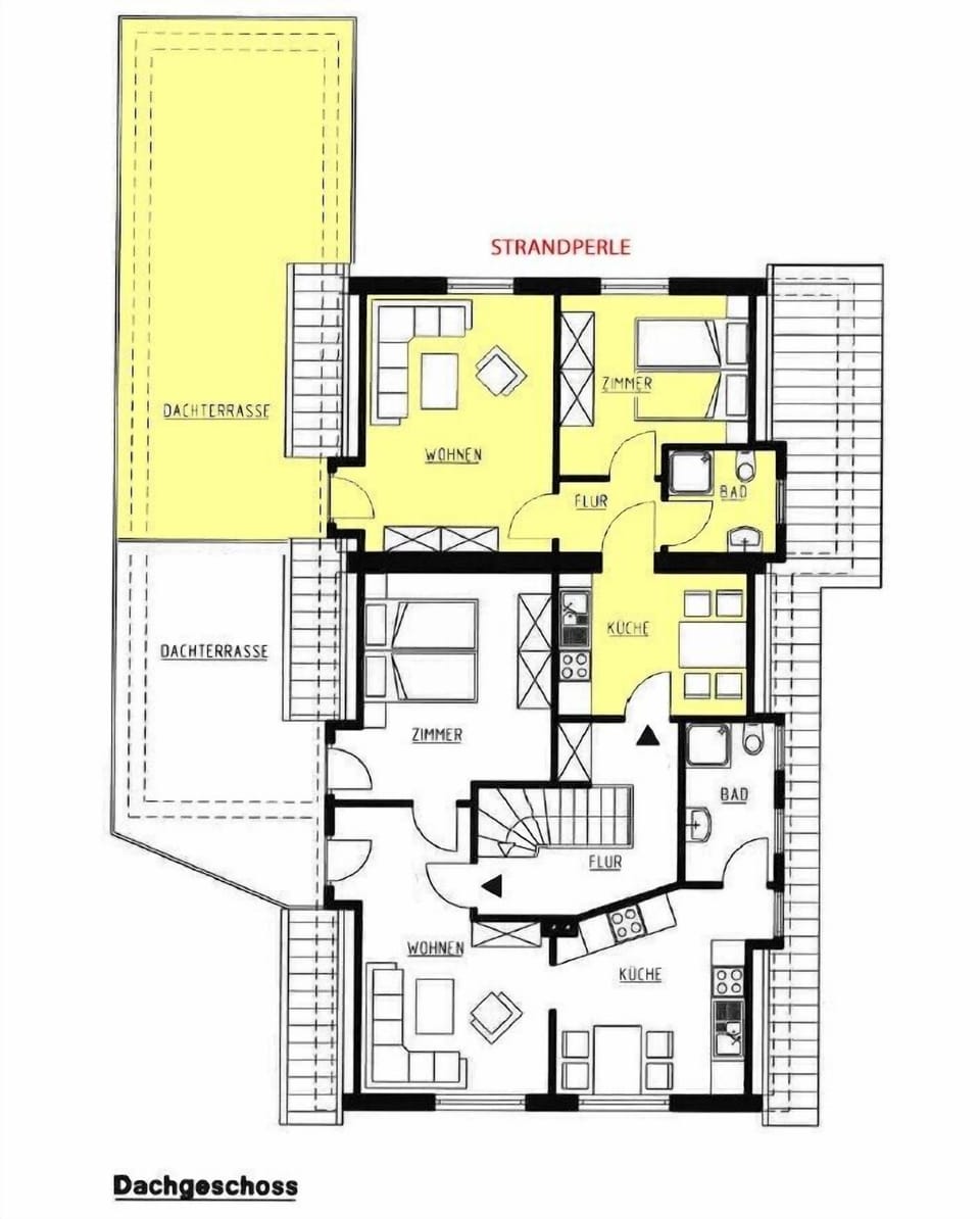
Apartment in Sankt Peter-Ording
Reasons to book
About this apartment rental
Located in St. Peter-Ording, this welcoming apartment lets you experience it all. Sankt Peter Ording Beach is within an easy 8-minute walk and Schleswig-Holstein Wadden Sea National Park is also a quick 12-minute walk away, so leave your car at the property, which offers onsite parking.
The kitchen is equipped with an oven, a stovetop, and a refrigerator, as well as a coffee maker, cookware, and a toaster. Connect to the free WiFi, or get cozy in front of the TV; there's also a stereo. And you won't have to pack extra clothes, because you'll have a washer and dryer, too. Other amenities at this 1-bedroom, 1-bathroom rental include a living room, heating, and a dining table.





