Cottage in Brittany
Reasons to book
About this cottage rental
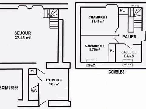
Ground floor: lounge/living room, separate fitted kitchen, separate WC. Upstairs: 2 bedrooms (1: 140x190 bed, 2: 2 90x190 beds), bathroom/wc. Equip. extra: Wifi, freezer compartment, heated towel rail, high chair/cot, radio/CD with USB port.
Included: sheets (beds made) and household linen.
Not included: electric heating, towels, wood and tourist tax.
Reserved only for tourist customers (no professionals).
Property managed by a professional. Unless stated, services such as cleaning, bed linen, towels etc. are not included in the price of this rental. If pets are allowed (information in the advertisement), charges may be applicable.
Only equipment mentioned in this advertisement are present. Equipment not mentioned are not considered to be present. Unless there is an electric charging station in the accommodation, charging electric vehicles is prohibited.
In Herbignac, direction La Chapelle des Marais. 1st road on the left (1 km). Cross Sapilon, drive 3 km to the stop sign. Right for 1.5 km, then left (place called Sapin Vert), go 500 m and right.




































