Apartment in Massa Lubrense
Reasons to book
About this apartment rental
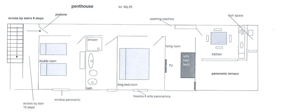
It's composed of one double bedroom, a twin bedroom (two single beds), a small living room with sofa bed (on demand single bed), a well equipped kitchen with access to the terrace with beautiful ocean view and one bathroom with shower.
Casa Mafra B accommodation is located in a smallvillage Schiazzano of Massa Lubrense close to Sorrento and Amalfi Coast.
The structure offers our guests a shared space for children, private car parking, free Wi-Fi, shared pool (3,00 mt. X 7,00 mt. - deep 1,40 mt.) with solarium, shower and sunbeds.
There's also inside a Restaurant/Pizzeria with terrace for dining under the lemons-garden.
Casa Mafra B is suitable for couples or those who love the view seeing the sea from the property or large family that can book other apartments located in the same place.
Nearby beaches are Natural Bay Marina del Cantone just 5 km or Cala di Puolo approx 6 km.
We recommend to hire a car so you can easily visit nice around places like Positano, Sorrento and Amalfi Coast.





