Apartment in Cruz Bay
Reasons to book
About this apartment rental
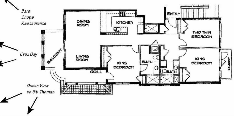
Palmetto at Grande Bay is fully air conditioned with three bedrooms and two full baths. Accommodations include two King beds, two twins convertible to a King, and a Queen foldout couch for a maximum occupancy of 8 adults. The beds have high thread count linens with hypoallergenic mattress covers. All bedrooms have a ceiling fan with overhead lighting, a large closet with a safe, and a tv. The fully equipped kitchen has all stainless appliances, granite counter-tops, and a wrap around bar ledge. There are four counter stools and a 6-8 person glass dining table.
Amazing views from the kitchen, dining area, family room, master bedroom. New family room TV with DVD/iPod/Stereo player. Dine alfresco on the patio/veranda area that is equipped with ceiling fan. The main balcony has a second private entry from the master bedroom via a wrap-around veranda. A second open balcony with tropical island feel is accessed from the 2nd King Guest room. Reserved covered parking spot with elevator access to your condo. The resort includes a beautiful sun deck and pool and with in-pool surround seating and hot tub. Fitness room with TV treadmills, and other workout equipment overlooking Cruz Bay so you can watch boats cruise in and out of the harbor!
On arrival, you will be welcomed at the ferry dock by our greeter who will walk you to the resort, show you the facilities, and get you situated in your condo. Inquire about additional concierge, pre-stocking of food, and other services that are available for an additional charge.
Get ready to look out across the turquoise water, immerse yourself in the dazzling sunshine. During the day, sunbathe on the pool deck just steps from your door, cool off with a refreshing dip in the pool, relax at any of the many beaches, or go hiking or exploring into the unspoiled National Park that covers 2/3 of the island. At nighttime, take an easy walk to any of the many bars and restaurants, shop for island jewelry, or seek a little more action in the nearby casino. Then, just a short evening stroll back to Palmetto at Grande Bay!





