Apartment in La Clusaz
Reasons to book
About this apartment rental
Outside, the south-facing balcony overlooks the village and mountains, creating a bright and pleasant atmosphere in the early morning. The private garage provides convenient parking in all seasons.
Nearby, the village centre and the Bossonnet ski slopes are only 250 metres away, where ski lessons start every morning. A shuttle bus in front of the residence makes it easy to get around, while 5 km away, the Lac des Confins, surrounded by mountain peaks, is ideal for summer walks and winter outdoor activities. Annecy train station, 36 km away, and Geneva International Airport, 67 km away, ensure easy access.
In detail:
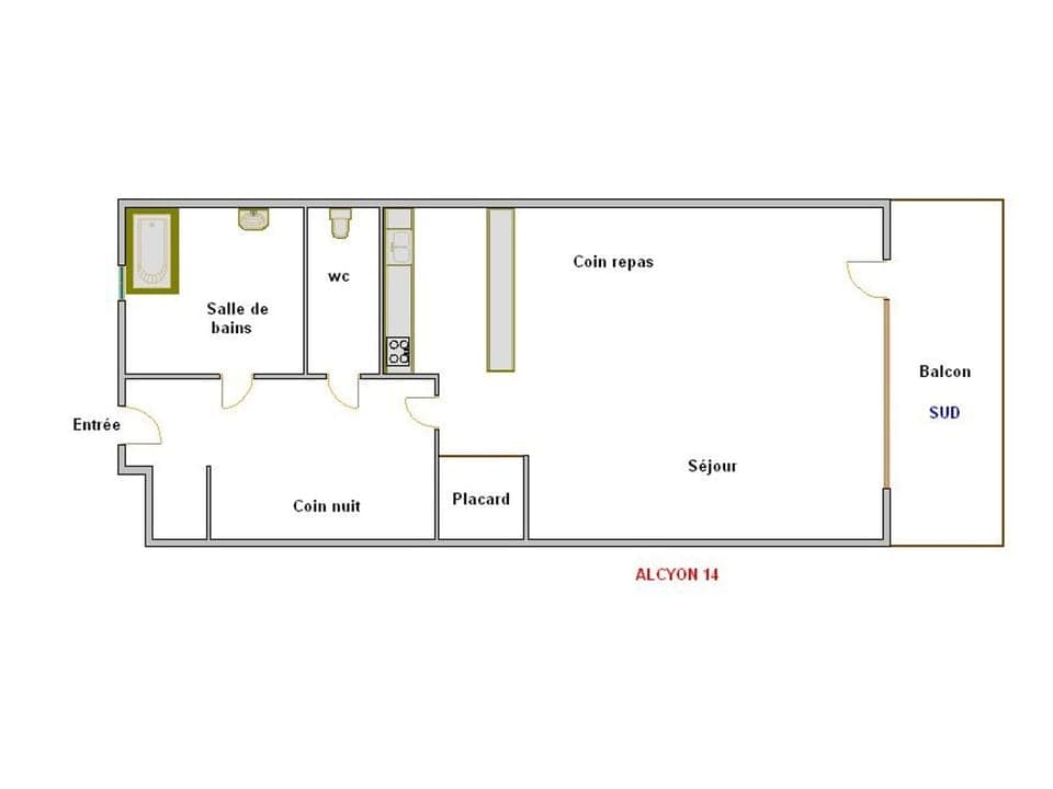
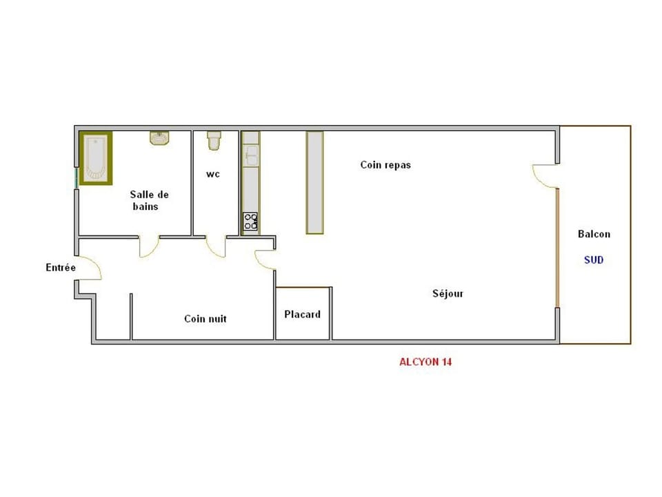
The entrance, located on the first floor, leads to a sleeping area with two bunk beds (70 cm). The living area is organised around a dining area and two single sofa beds (80 cm). The open kitchen, integrated into the living room, naturally complements the living space. French windows open onto the south-facing balcony, providing a pleasant extension to the living area.
A bathroom equipped with a bathtub and a window facing the rear of the residence providing light, as well as a separate toilet, complete this unit.
Key features:
Services included: Bed linen included. Towels and end of stay cleaning available at an additional cost.
Facilities: Vitroceramic hob, microwave, mini-oven, dishwasher, refrigerator, raclette machine, fondue set.
Comfort: Towel dryer, electric heating with preheating in the floor, ski locker, lift, numbered garage space A 14 (2nd basement, 5th garage on the left).
Leisure: Flat-screen TV.
Insurance and conditions: Insurance and cancellation conditions apply in accordance with the General Terms and Conditions of Sale.
Pets: Pets are welcome (supplement of €15 per day per pet).
Non-smoking apartment: Entirely non-smoking interior for a healthy and pleasant stay.
Accessibility: Apartment not suitable for people with reduced mobility.
Translation generated automatically by AI – May contain inaccuracies.
Optional services to be paid on site and to be booked before your arrival:
. WiFi box rental / week : 39.0 € per stay
. Animal supplement : 105.0 € per stay
. Mid-stay cleaning : 50.0 € per stay
. Bath mat : 5.0 € per stay
Property managed by a professional. Unless stated, services such as cleaning, bed linen, towels etc. are not included in the price of this rental. If pets are allowed (information in the advertisement), charges may be applicable.
Only equipment mentioned in this advertisement are present. Equipment not mentioned are not considered to be present. Unless there is an electric charging station in the accommodation, charging electric vehicles is prohibited.
Residence located UPTOWN, at 250 m from BOSSONNET Telemix (6-seater combined chairlift and cable car), chairlift, ski lift (ski lessons departure / contact Schools) and shops. Bus stop in front of the residence in winter season and at 240 m in summer season.





