Cozy studio for 4, near slopes and shops, pets welcome, parking included

Living area
Living area
Dining
Private kitchen
Interior
Don't miss out! Price and availability may change

Apartment in La Clusaz

5 guests · 1 bedroom · 1 bath

Reasons to book

High-end valueWell priced for this area
Book with confidenceWe partner with the top travel sites so you know you're getting a great deal on the perfect rental
Includes essentialsPets allowed, Family friendly and more

About this apartment rental

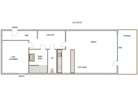
ALCYON N° 1
2** rating / 2 GUESTS

STUDIO + SLEEPING NOOK + SLEEPING CORNER / 4-5 guests / 27 m² / Ground-floor / South West facing
Residence located UPTOWN, at 250 m from BOSSONNET Telemix (6-seater combined chairlift and cable car), chairlift, ski lift (ski lessons departure / contact Schools) and shops. Bus stop in front of the residence in winter season and at 240 m in summer season.

- HALL / SLEEPING CORNER (5.84 m²): 1 raised SINGLE BED (70) surélevé -> bed forbidden under 6 years old
- SLEEPING NOOK (4.56 m²): 1 DOUBLE BED (140), west facing window, next door residence view
- SHOWER ROOM (2.4 m²): washbasin, walk-in shower, TOWELDRYER radiator
- Independent WC (0.88 m²)
- KITCHENETTE: fridge (129 L), GLASS-CERAMIC STOVE, MICROWAVE, MINI-OVEN, DISHWASHER
- LIVING ROOM (12.95 m²) : eating place, 2 SINGLE SOFA BEDS (80), flatscreen TV, south facing bay window + French window + terrace, terrace / mountain view

Pets allowed – €15/day/pet.

DUVET COVERS, SHEETS AND PILLOWCASES PROVIDED. NO SMOKING APARTMENT. NOT ACCESSIBLE TO PEOPLE WITH REDUCED MOBILITY. LIFT. GARAGE NUMBERED A1 (2nd basement, last garage on the left).
Ski locker. Bikes forbidden in the apartment + on the terrace.
Electrical heating with an under-floor heating base.
Residence with 43 apartments built in 1989.
Annecy train station: 33km / La Clusaz bus station : 1.05km.

Bonus : Its south facing terraceSAMOYEDE N° 4
2** Rating / 4 GUESTS

STUDIO + MOUNTAIN CORNER / 4 guests / 36 m² / Raised ground-floor / West facing
Residence located on the CONFINS plateau, 6 km from the village, 2.2 km from the LA BALME / FERNUY cable cars. Direct access to cross-country ski trails and golf driving range in summer. Shuttle bus stop 300 m away.
- HALL (8.16 m²)
- MOUNTAIN CORNER (5.60 m²): 2 BUNK BEDS (80) -> bed forbidden under 6 years old, east-facing window, view of neighbouring residence / green spaces
- SHOWER ROOM (2.66 m²): washbasin, shower, WC
- KITCHENETTE: fridge (100 L), oven, GLASS-CERAMIC STOVE, MICROWAVE
- LIVING ROOM (19.53 m²): dining area, 1 DOUBLE SOFA BED (160), flat screen TV, east-facing window, view of neighbouring residence/green spaces, south-facing bay window + French window, south-west facing balcony, mountain view
Pets allowed – €15/day/pet.

DUVET COVERS, SHEETS AND PILLOWCASES PROVIDED. NO SMOKING APARTMENT. NOT ACCESSIBLE TO PEOPLE WITH REDUCED MOBILITY. Residential car park.
Central heating system.
Residence of 10 apartments, built in 1980.
Annecy train station: 38.5km / La Clusaz bus station: 6.65km.

Bonus: On the Nordic ski slopes.
Optional services to be paid on site and to be booked before your arrival:
. WiFi box rental / week : 39.0 € per stay
. Animal supplement : 105.0 € per stay
. End-of-stay cleaning – 20 m² to 29 m² : 69.0 € per stay
. Bath mat : 5.0 € per stay

Property managed by a professional. Unless stated, services such as cleaning, bed linen, towels etc. are not included in the price of this rental. If pets are allowed (information in the advertisement), charges may be applicable.
Only equipment mentioned in this advertisement are present. Equipment not mentioned are not considered to be present. Unless there is an electric charging station in the accommodation, charging electric vehicles is prohibited.

Residence located UPTOWN, at 250 m from BOSSONNET Telemix (6-seater combined chairlift and cable car), chairlift, ski lift (ski lessons departure / contact Schools) and shops. Bus stop in front of the residence in winter season and at 240 m in summer season.

Amenities at Cozy studio for 4, near slopes and shops, pets welcome, parking included

Pets allowed
Family friendly

Map of La Clusaz


Things to know


Additional fees to expect

Cleaning & other feesWe include all stay related fees in the Cleaning Fee line, which may include cleaning, property manager, resort, tourism and other stay related fees. All Vrbo properties are professionally cleaned after each stay.
Booking feeNo booking fees, easy credit card payments.
Service feeThis helps Vrbo provide a safer and more secure booking experience.
TaxesTaxes on accommodation such as Occupancy Tax, VAT, or GST. May also include tourism fees.

Customer support

Customer support is handled by our partner Vrbo

    $$$$
    vrbo logo