Apartment in Westerland
Reasons to book
About this apartment rental
A short distance from sailing, windsurfing, and more, this smoke-free apartment lets you experience it all. Westerland Beach is just a short walk away, so you can leave your car at the property, which offers onsite parking, or jump in your vehicle to make short work of the 3-minute drive to Sylter Welle.
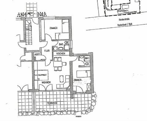
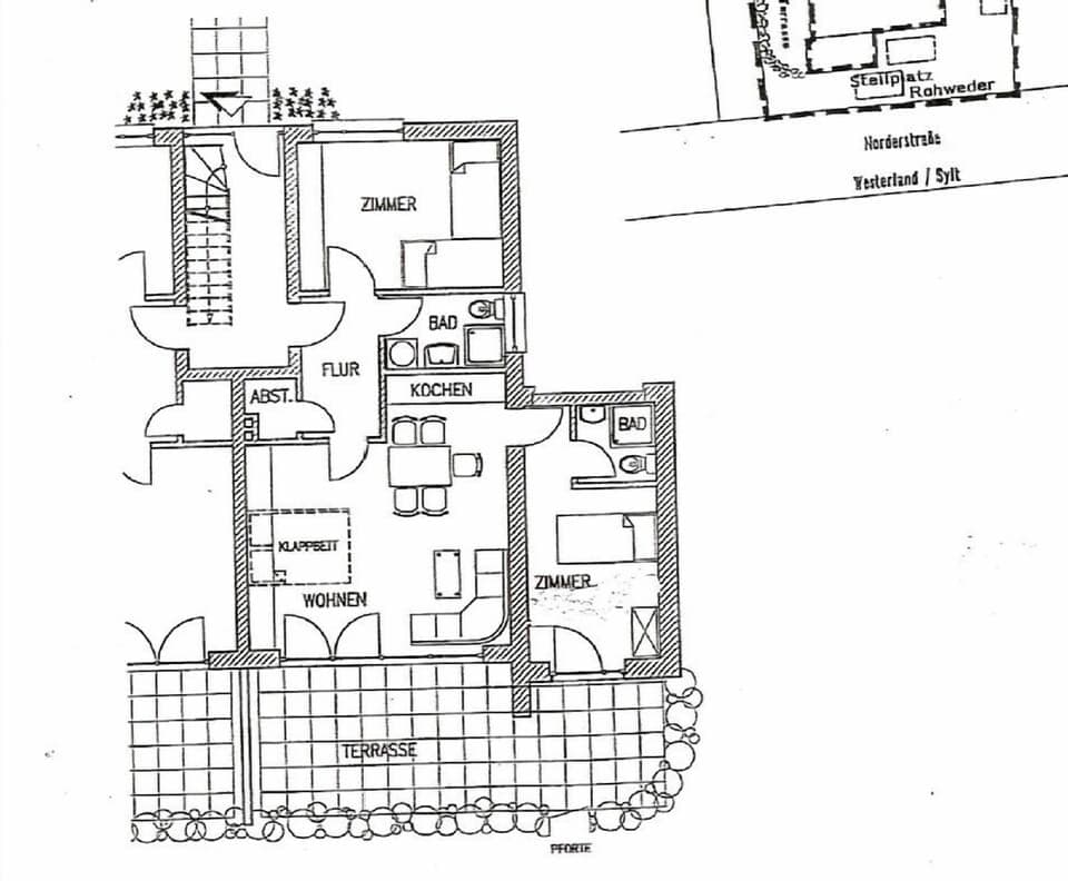
You can make the most of the outdoors with the deck or patio and BBQ grill at this 538-sq-ft apartment. For a change of scenery, come inside and enjoy the free WiFi, cable/satellite TV, and DVD player.
As you settle into this 2-bedroom rental, you'll find a dining area and a sofa bed. Bathroom amenities include a hair dryer, towels, and toilet paper. The kitchen is equipped with an oven, a stovetop, and a refrigerator, as well as a coffee maker, an electric kettle, and cookware. And you can even travel light because you'll have access to laundry facilities.




































