Boca North - Ocean View 3BR Home & Community Pool!!!

Top rated by guests
Top Floor Sun Deck
Top Floor Sun Deck II
Ocean View from Top Floor Sun Deck
Ocean View from Top Floor  Deck II
1st Floor Covered Deck II
review stars
9.8Outstanding
(8 Ratings)
"Beautiful place, super convenient spot for the beach. Glad to have booked this spot for our first trip to Topsail"
Nichole P.
Don't miss out! Price and availability may change
9.8 / 10.0
Outstanding(8 Ratings)

House in Village of Stump Sound, NC

8 guests · 3 bedrooms · 2 baths

Reasons to book

Guests love it hereGuests give this property a top rating
Top-tier experienceA high end property in this area
Book with confidenceWe partner with the top travel sites so you know you're getting a great deal on the perfect rental

About this house rental

This beautiful 3 bedroom, 2.5 bath oceanview home is a great spot to relax and unwind, especially with the added benefits of the premier neighborhood amenities of the Village of Stump Sound. Enjoy the contemporary coastal décor and family-friendly layout of the home as well as the beautiful landscaping and community pool with clubhouse, tennis court and more!  This vacation home is an easy choice for your family to get the most out of your vacation to Topsail Island.

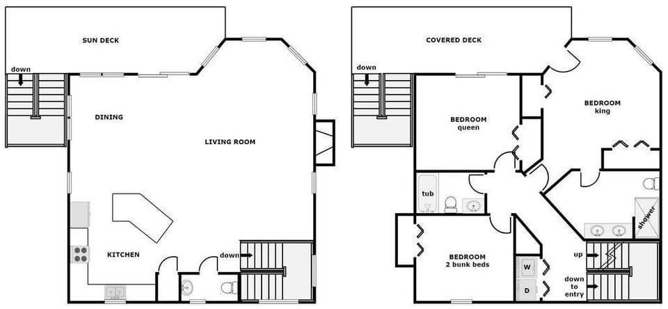
Living and Dining:

The popular reverse floorplan maximizes amazing views from the living and dining area on the second floor. The bright modern kitchen, complete with granite counters and a large island that seats 4, is open to the dining area with seating for 8-10. The comfortably furnished living room is framed by large oceanview windows and a slider to the sun deck - compelte with furniture and ocean views. There is also an additional dining table in the living area that can be used for puzzles and games when the weather won't cooperate!

Sweet Dreams:  Linens included for all reservations 7 nights or longer.

South Oceanside Bedroom: King Bed; TV; full private bath with shower; access to the covered deck
North Oceanside Bedroom: Queen Bed; TV; full bath with tub/shower adjacent; access to the covered deck
North Street-Side Bedroom: 2 Bunk Beds; TV; full bath with tub/shower adjacent

Outdoor Spaces:

Located in the lovely neighborhood of Village of Stump Sound, you’ll have access to the community swimming pool, tennis courts and boat launch (kayaks/canoes only). Community swimming pool is open from Memorial Day to end of September (dates subject to change depending on weather and HOA). The beach access is a shared walkway next door at the pool/clubhouse. Enjoy the ocean breezes from either of the two oceanview decks.

Location:

Your beach rental is located approximately 3.5 miles north of the Surf City high rise bridge in North Topsail Beach. You'll love the peace of quiet here.  Head to Surf City or Sneads Ferry (mainland) for restaurants, shops, and more! Be sure to visit some local attractions such as the Karen Beasley Sea Turtle Hospital and the Missiles and More Museum, which tells the story of our island's past.

Amenities:

Linens are included for all reservations 7 nights, or longer
Central Heat/Air
Keyless Entry
4 Smart TV's
Wireless Internet
Full kitchen with dishwasher & microwave
Washer/Dryer
Ceiling fans
Outside shower - cold water only
1-car garage with wet weather entry
2 sundecks with deck furniture

Additional Property Information:

Boats, RVs, trailers, etc. must be parked underneath the home.
Access to Village of Stump Sound community swimming pool, tennis courts and small watercraft launch (kayaks/SUPs only).
Community swimming pool is open from Memorial Day to end of September (dates subject to change depending on weather and HOA).
Fireplace is not available for guests.
Smoke Free - No smoking allowed by anyone on the premises.
No Pets - No pets allowed by tenants on the premises.

Trip Preparation:

Rental homes with Ward Realty all have minimum standards to make your stay be as close to home away from home as possible. All of our rentals include fully equipped kitchens, basic small appliances (microwaves, coffee makers, toasters, blenders), pillows, comforters/bedspreads, television(s), central heating/air, iron/ironing board and much more! See Ward Realty's website for a helpful list of what to bring with you to your vacation rental. Please note that this vacation rental does not come with sheets or towels. You may bring your own or rent them through Ward Realty.

Disclaimer: Photos displayed on this website are intended to provide a general representation of our vacation rental properties and the surrounding areas. While some amenities may be pictured, they are for display purposes only.  Only those amenities listed on the website description, not in photos, are available.  While we strive to keep all images accurate and up to date, furnishings, décor, and amenities may change over time and may vary slightly from what is shown. Seasonal differences, weather conditions, and lighting may also affect the appearance of the property.   We do our best to present each rental honestly, but we cannot guarantee that every detail will be exactly as depicted. If you have specific questions or requirements, please contact us directly before booking.

Amenities at Boca North - Ocean View 3BR Home & Community Pool!!!

Non-smoking
No pets allowed
Family friendly

Map of Village of Stump Sound, NC


Ratings and reviews

9.8 / 10.0
Outstanding(8 Ratings)
10.0 / 10.0Outstanding·Jul 2025
Beautiful place, super convenient spot for the beach. Glad to have booked this spot for our first trip to Topsail
10.0 / 10.0Outstanding·Jun 2023
Love the house and all of the amenities. The location to the clubhouse, pool, and beach access were perfect. The pictures on this house do not do it justice. It was impeccably clean, and had most of what we needed. Perfect size for two small families vacationing together.
10.0 / 10.0Outstanding·Aug 2022
Great place for two small families! One minute walk to the pool and two minutes to the beach!
10.0 / 10.0Outstanding·Jul 2022
Excellent location, spacious rooms, clean, and fairly modern decor.

$$$$
vrbo logo

FAQs

Is parking included with this house?

Parking is not specified as an available amenity at Boca North - Ocean View 3BR Home & Community Pool!!!. For more information, we encourage you to contact the property about where to park.

Is there a pool at this house?

We didn’t find pool listed as an amenity for this house. It may be worth double checking if a pool is important for your stay.

Is Boca North - Ocean View 3BR Home & Community Pool!!! pet friendly?

Unfortunately, this house is not pet-friendly. Try searching again and filter for "Pets Allowed"

What amenities are available at Boca North - Ocean View 3BR Home & Community Pool!!!?

We found 3 amenities for this rental. This includes non-smoking, no pets allowed, and family friendly.


Explore similar stays in Village of Stump Sound

Explore all stays