House in Zonza
Reasons to book
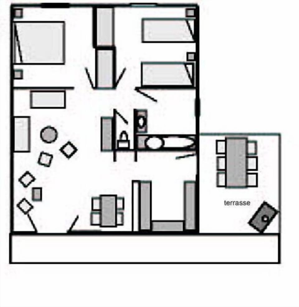
About this house rental
Classified furnished 3 * tourism (asset France Ministry of Tourism).
includes: 1 living / 2 bedrooms / 1 bathroom / wc / shaded terrace, private garden 500m2, private parking.
Wifi Internet included, satellite TV, washing machine, dishwasher, full appliances.
Located 1.5 km from the beach of Saint Cyprien (2 'car or 10' walk)
Local shops at 1,5 km, supermarkets at 6 km, Porto-Vecchio at 7 km, Bonifacio 35km.





