Apartment in Piedmont
Reasons to book
About this apartment rental
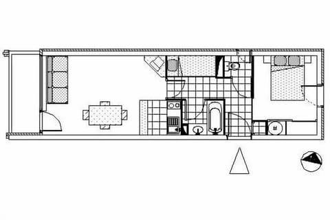
Accommodation: Apartment 2 rooms mountain corner - 4 peopleThis nice apartment located on the 1st floor of the Aiglon building in the Balcones of Curtious enjoys a beautiful South-West exhibition and a furnished balcony. Close to the departure of the ski slopes and hiking trails you can fully enjoy the mountain summer and winter.Sleeping:1 bedroom with double bed1 closed mountain corner in the entrance with bunk beds (2 beds)Equipment:Living room with fully equipped kitchenette (oven, refrigerator, microwave, dishwasher, induction hob, extractor hood) and sitting area with non-convertible sofa and TV. Free Wi-Fi.Sanitary: Bathroom with bath, bath-tub, sink and towel dryer. Separate toilet.In particular:Possibility to order linen and cleaning end of staySki storage at the entrance to the buildingParking spaces in front of the residencePets not allowedNot accessible to persons with reduced mobility
Details: Near airport : Nice-Côte d'Azur Airport #NCE (185.3 km), Malpensa International Airport #MXP (195.2 km), Turin Airport #TRN (73.6 km), Geneva International Airport Cointrin #GVA (141.4 km) Deposit (in euros) : 300 Surface (m²) : 38 Dishwasher Wireless Television Balcony Animals not allowed Ski locker Distance Tracks : 300 metres Distance Ski School : 300 metres Elevator : 1 kettle Coffee maker Hair dryer Number of pieces : 2 Number of bedrooms : 1 Number of cabins : 1 Number of double bed : 1 Number of single beds : 2 Number of toilets : 1 Number of bathroom : 1 Floor Number of stars : 3 Exposure : West Toaster Microwave oven Ironing board and iron Cooked : 1 Heating : 1 Dishes and cutlery : 1
Reference: 2022103




































