Apartment in Zoutelande
Reasons to book
About this apartment rental
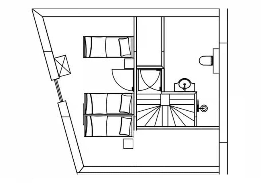
Upstairs, the lodge features two inviting bedrooms that promise restful nights. The first bedroom stands out with its luxurious bathtub — a rare touch that adds a hint of indulgence to your stay. The second bedroom offers comfortable sleeping arrangements for up to three guests. The modern bathroom includes a shower, toilet, washbasin, and hairdryer, while amenities like floor heating, a washing machine, and tumble dryer ensure maximum convenience.
Step onto your private balcony and enjoy peaceful views over the green courtyard — a serene hideaway right in the lively center of Zoutelande. With access to a garden, sauna (paid at reception), bicycle storage, parking, and even fitness equipment, everything you need is right at your fingertips. And when you’re ready to explore, the beach, dunes, and village shops are just moments away. Whether you’re traveling as a family or with friends, this lodge offers a unique mix of comfort, location, and Zeeland charm. Max. 1 pet allowed.
Please note that a maximum of 79 euros will be charged on-site as a pet cost.
Please be aware that events, commercial activities, or parties are not permitted on the premises, ensuring a serene and enjoyable stay for all guests. To ensure everyone's comfort, we observe a quiet time policy from 23:00 to 7:00 , allowing all guests to enjoy a restful environment.
Layout: On the 1st floor: (Living room(TV(flatscreen), dining table, seating area, radio, netflix), open kitchen(hob, hood, oven, microwave, dishes and cutlery), bedroom(single bed, single bed, bath tub), toilet(toilet)) On the 2nd floor: (bedroom(single bed, single bed, single bed), bathroom(shower, washbasin, toilet, hairdryer)) Internet access, tumble dryer, sauna, washing machine, balcony, heating(floor heating), garden, bicycle storage, parking, fitness equipment, stair gate
These costs are mandatory and charged on site. They are not included in the rental price.:
Final Cleaning; Included
Pets; Max. 1; € 17,50/night
Bed linen; Included
Late Check-Out; € 29 /Stay
Bed made; € 7,50 /person
Children's bed; (excluding bed linen) € 10 /person
Early check-in; € 29 /Stay
Optional services that you can arrange on site:
Bath towels; Included
Sauna; € 20/person
