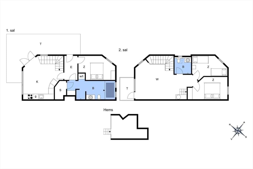
FY213 Bogense - Vestre Engvej 138 1, th










Parking is not specified as an available amenity at FY213 Bogense - Vestre Engvej 138 1, th. For more information, we encourage you to contact the property about where to park.
We didn’t find pool listed as an amenity for this house. It may be worth double checking if a pool is important for your stay.
Yes! This house is pet-friendly. For more information, we recommend contacting the booking provider about animal policies.
We found 2 amenities for this rental. This includes pets allowed, and family friendly.