Apartment in Les Allues
Reasons to book
About this apartment rental
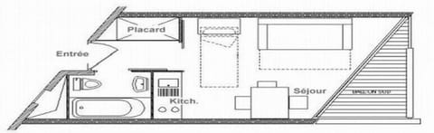
Surface area : about 20 m². 7th floor. Orientation : South. Living room with bed-settee, folding bed. Kitchenette with coffee machine, oven / microwave, toaster, dishwasher, 2 cooking rings, fridge. Bathroom with bath-tub, WC. Balcony.






















