Apartment in North Shields
Reasons to book
About this apartment rental
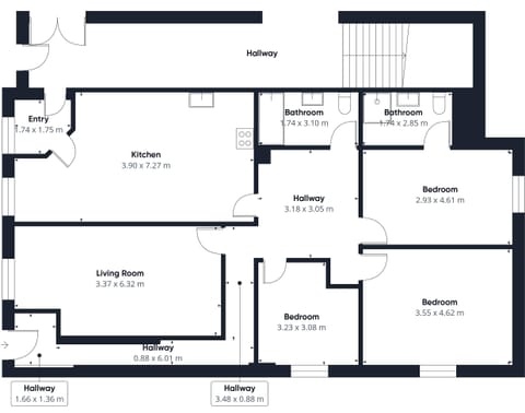
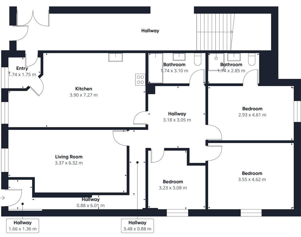
Experience a memorable stay at Drummond Suite, a beautifully appointed ground floor apartment in North Shields. This apartment features three bedrooms, providing ample space for up to six guests. Enjoy the convenience of a fully equipped kitchen, perfect for preparing your favourite meals, and relax in the comfortable living space. Located near the town centre and Port of Tyne, you'll have easy access to local shops and attractions.
The Space:
A real treat awaits on the ground floor of this modern apartment block in the heart of North Shields. The luxurious Drummond Suite is a contemporary three-bedroom apartment designed with both comfort and style in mind, sleeping up to six guests in total comfort.
From the moment you walk through the door, you’ll know we’re committed to delivering a memorable stay. Whether you're visiting for business or leisure, Drummond Suite offers the perfect blend of home-from-home convenience and sleek modern living.
The spacious living room/study is the heart of the apartment – a bright and welcoming space ideal for relaxing, working, or catching up with friends and family. Stretch out on the comfy sofas, enjoy a film night with the wall-mounted widescreen TV, or make use of the dedicated work desk for any business needs.
Just off the living area, you'll find a fully equipped modern kitchen – perfect for preparing anything from a quick breakfast to a full evening meal. With high-quality appliances and plenty of counter space, self-catering has never been easier.
All three bedrooms are beautifully presented with comfortable double beds, stylish furnishings, and ample storage to help you settle in with ease. One of the bedrooms benefits from a private ensuite shower room, adding an extra touch of convenience and privacy.
The main bathroom features a sleek modern design, complete with a full-sized bathtub and overhead shower – ideal for unwinding after a busy day of exploring the coast or heading into Newcastle upon Tyne for business or pleasure.
Just a short walk from local shops, cafés, restaurants, and the scenic North Shields Fish Quay, Drummond Suite is the ideal base for discovering the Tyne & Wear region. Whether you're here for a weekend break or a longer corporate stay, you're sure to feel right at home.
Guest Access:
Guests have access to the full apartment.
Drummond Suite is located on the ground floor.
The keys to Drummond Suite are accessed via a key safe box. Further details will be provided prior to check-in.
Free on-street parking is available nearby. Additional car parks can also be found a short distance away.
The Neighborhood:
Nestled on the scenic north bank of the River Tyne, North Shields is a vibrant coastal town full of charm, history, and easy access to the best of North East England.
Wander through the historic Fish Quay, where fresh seafood and waterfront pubs create a warm, inviting atmosphere. Enjoy leisurely strolls or cycling along the picturesque promenade, or explore the nearby Tynemouth Castle and Priory for a touch of history with sea views. The area boasts independent shops, artisan cafés, and friendly locals who make you feel right at home.
Whether you're looking to surf the waves, explore coastal trails, or dine on locally caught fish and chips, North Shields is a hidden gem that caters to families, couples, and solo travellers alike.
Getting Around:
Just a short journey from Newcastle upon Tyne and minutes from the golden sands of Tynemouth Beach, North Shields is the perfect base for both relaxation and adventure.
Well-connected by Tyne & Wear Metro and Shields ferry services to South Shields, North Shields offers convenience without sacrificing coastal charm. By Metro, visit Newcastle upon Tyne, Tynemouth, Wallsend and Whitley Bay.
For mainline trains, Newcastle Central Station is the nearest, and from there you can transfer to the Metro. Newcastle has direct services operating to locations across the UK including Ashington, Carlisle, Edinburgh, Hexham, Liverpool, London and Morpeth.
A number of bus routes operate in North Shields offering access to Ashington, Cramlington, Jarrow, Newcastle upon Tyne, Sunderland, Tynemouth and Whitley Bay.
Interaction with Guests:
We're always available for our guests so do not hesitate to get in touch.

































