2 guests · 1 bedroom · 1 bath
Great price for your budgetOne of the lowest cost properties in the area
Book with confidenceWe partner with the top travel sites so you know you're getting a great deal on the perfect rental
Includes essentials and more
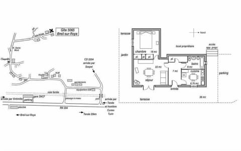
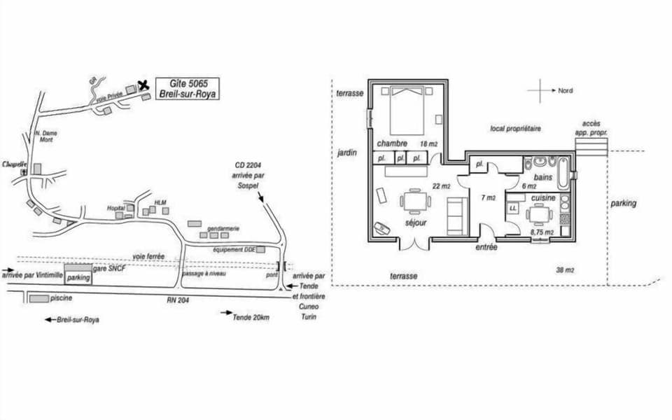
Garden level of the owner's house : Entrance hall, living room with 1 sofa bed (140x190). Independent kitchen. Bedroom with 1 double bed (160x190). Bathroom with toilet. Equipped terrace (30 m²). Car park. Garden. Electric heating. Tourist tax and energy extra (0.12 E/KWH extra). Cleaning/request package. On the outskirts of the village, Gîte with terrace opening onto the Roya valley to enjoy the great outdoors. On the edge of the Vallée des Merveilles, the town of Breil includes part of the territory of the Mercantour National Park. The Roya valley, labeled Country of art and history by the Ministry of Culture, presents a natural and cultural heritage of remarkable richness and diversity. Zone of passage and exchange, at the crossroads of the sea and the mountains extending along the border which allows escapades in Italy. Idea for a trip from Nice: One of the most beautiful railway journeys in Europe! From Nice to Tende, set off to discover the hilltop villages. Every summer day, a tour guide on board helps you appreciate all its charms. Garden floor apartment Roya valley, Mercantour park
Non-smoking
No pets allowed
Family friendly
$$$$
Don't miss out! Price and availability may change
FAQs
Is parking included with this house?
Parking is not specified as an available amenity at Chez Marino - BREIL-SUR-ROYA. For more information, we encourage you to contact the property about where to park.
Is there a pool at this house?
We didn’t find pool listed as an amenity for this house. It may be worth double checking if a pool is important for your stay.
Is Chez Marino - BREIL-SUR-ROYA pet friendly?
Unfortunately, this house is not pet-friendly. Try searching again and filter for "Pets Allowed"
What amenities are available at Chez Marino - BREIL-SUR-ROYA?
We found 3 amenities for this rental. This includes non-smoking, no pets allowed, and family friendly.
