Apartment in Anstruther
Reasons to book
About this apartment rental
With two double bedrooms, you'll enjoy comfort and easy access to all that Anstruther and the beautiful East Neuk of Fife has to offer. The house is just a few minutes from the famous fish and chip restaurant, and offers easy access to St. Andrews and the rest of Fife.
The space
The Corner House is on the seafront in the beautiful coastal fishing town of Anstruther, in the East Neuk of Fife. It's around 15 minutes to St Andrews, with easy access along the Fife Coastal Path to the other beautiful villages of the East Neuk.
Our house is across the road from the beach and has beautiful views out to sea, with seating in the lounge and dining area to enjoy the view, as well as window seats looking out to sea in both bedrooms. The beach is right across the street, with the harbour next to it.
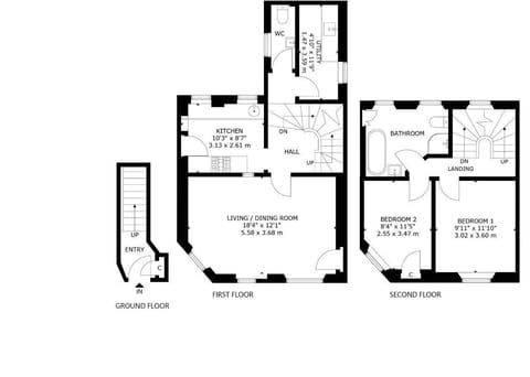
Our house has two bedrooms, one with a king sized bed and the other with a standard double bed. Both bedrooms have blinds and a blackout curtain.
There is a full bathroom with a bath and shower on the same level as the two bedrooms, and an additional W.C. with toilet on the lounge and kitchen level.
The kitchen is fully equipped with oven, hob, microwave, kettle, toaster, coffee machine and dishwasher, and you'll be welcomed with tea, coffee and a little treat on your arrival.
Please be aware, our house is on three levels, and has steep stairs. As such, it is not suitable for those with difficulty on stairs. It is an old, historic building, and comes with the quirks of a building of its age. Expect uneven floors and a few creaky floorboards!
You'll find some games, a streaming ready TV, binoculars to check out the view and some books and maps of the local area, which we hope you'll enjoy using during your stay.
License number: FI-02264-F
Guest access
Guests will have full and exclusive access to the house during their stay. Please note, there is an attic in the property, but this is not accessible.
Other things to note
Please take note of the stairs in the property and that it is not suitable for those with accessibility issues. There is a reasonably sized hallway on the ground floor.
House rules
Please respect our neighbours and keep noise to a minimum. Anstruther is a peaceful town, and as such we would request no parties to be held at the property.
Please take care of items in the property. We understand that accidents and breakages can happen, and would ask you to let us know should anything get damaged or broken so that we can replace it for future guests.
We leave items such as maps and books, games, binoculars and some beach items in the house for you to use during your stay. We would ask that you do not take any of these with you. You will be charged for anything removed from the property after your stay.




































