House in Oak Harbor, WA
Reasons to book
About this house rental
Charming 1940s house - 5br/2ba - Short walk to downtown/beach. Large, enclosed backyard with grill & firepit. Fully outfitted kitchen. Dog friendly (Dogs only please). Short drive to Naval Air Station. Welcome to Dyer House!
Pros:
- Large, enclosed backyard.
- Numerous beds without being cramped (bigger on the inside!).
- Short walk to downtown Oak Harbor and City Beach.
Cons:
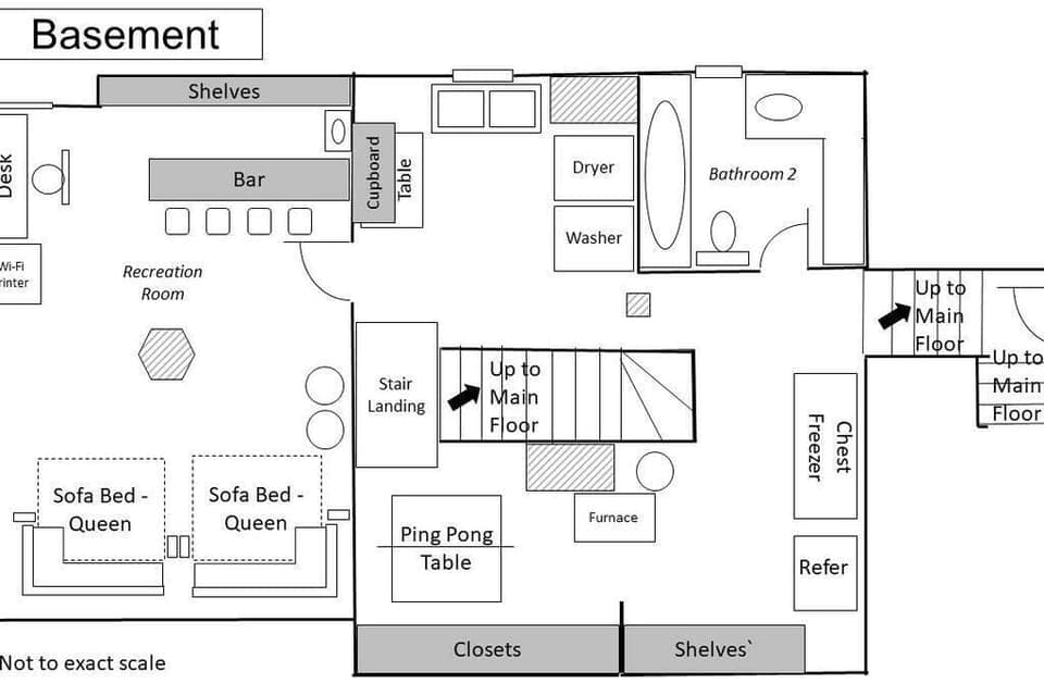
- Only 2 bathrooms, 1 of which is in the basement.
- No air conditioning for the occasional hot days, but fans available for each room.
The house that keeps on going. Main floor has three bedrooms, fully outfitted kitchen, dining room, one bathroom and living room. Basement has large recreation room with desk and Wi-Fi printer, one bathroom, washer, dryer, ping pong table, chest freezer, and second refrigerator. Attic has two bedrooms and small playroom. Large, enclosed backyard with propane grill and fire pit. Dog door available in master bedroom to the backyard.
Guests can access all spaces except the detached garage and backyard shed. A few cabinets in the basement are for cleaning staff use only.
We are available by message, phone, or text should you have any questions during your stay.
Security cameras are installed facing the driveway, side door, and front door. There are no cameras indoors or in the backyard.
Residential neighborhood near downtown Oak Harbor, WA.
It is easy to get around Oak Harbor. Dyer House is a great place from which to walk to parades, festivals, and events. Normally there is plenty of parking around town. Dyer House has a large driveway and additional parking spaces on the street. Island County also operates a free public bus system (see the Island Transit "dot org" website).
Minimum fees! Two full bathrooms; one on the main floor and one in the basement. Ping pong table in the basement, although playing space is tight.






















