House in Castle Rock, CO
Reasons to book
About this house rental
Welcome to your home away from home—but better, because here, you don’t have to do any checkout chores. Whether you’re here for a quick getaway or a longer stay, this townhome has everything you need: space, comfort, and even a private hot tub for those “I deserve this” moments.
Sleeps 8 Comfortably (No Couch-Surfing Required!)
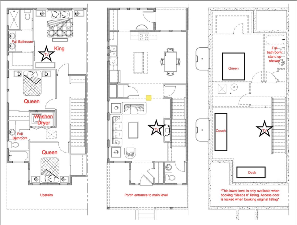
We get it—nobody wants to be the person stuck on a lumpy pull-out. That’s why we actually have real beds for all 8 guests!
• Primary Suite (Upstairs): King bed + private ensuite with double vanity, tub, shower & walk-in closet (because overpacking is real)
• Bedroom 2 (Upstairs): Queen bed
• Bedroom 3 (Upstairs): Queen bed
• Shared Upstairs Bath: Shower/tub combo (because no one likes waiting in line)
• Lower Level Bedroom: Queen bed + ensuite bath + TV + office space (for those “working remotely” but really just watching Netflix)
• Half bath on the main level—because convenience matters
Fully Stocked Kitchen & Dining (Foodies, Rejoice!)
• Kitchen table seats 8—no need to fight for a chair
• Coffee for all: Drip coffee maker, pour-over, Keurig + liquid creamer for that first morning (or late-night) caffeine fix
• All the essentials: Microwave, toaster, blender, crockpot, and enough dishes to avoid the dreaded “who’s washing this?” argument
Relaxation HQ
• Lower-level lounge with a big-screen TV (perfect for movie nights or “just one more episode” binges)
• Smart TVs in the main living area, primary suite, and lower level
• WiFi extenders throughout, so you can stream, scroll, or pretend to be working from anywhere in the house
Outdoor Chill Zones (Yes, There’s a Hot Tub)
• Private hot tub—always clean, always ready, perfect for soaking away your worries (quiet hours 10 PM-7 AM, because neighbors exist)
• Front porch—shaded in the morning for coffee-sipping like a pro
• Back patio—shaded in the evening, ideal for dinner or deep life talks around the fire pit
• Live plants & friendly wild bunnies make this place extra special (the bunnies don’t pay rent, but they add charm)
Location: Close to Everything (But Not Too Close)
Walking distance to downtown Castle Rock—coffee, shopping, and adventure await!
Quick drive to:
• 31 miles – Air Force Academy
• 40 miles – Garden of the Gods
• 31 miles – 16th Street Mall, Denver
• 43 miles – Denver International Airport
• 12 miles – Colorado Horse Park
• 19 miles – Denver Tech Center
• 2 miles – I-25 (for quick escapes)
The Rules (AKA, How to Keep This Place Awesome)
• MAX occupancy: 8 guests—no sneaky extra people, please
• No parties, no smoking, no drugs (yes, even the “legal” ones)—our neighbors like peace and quiet, and we do too
• Quiet hours: 10 PM-7 AM, especially in the hot tub—let’s not be that guest
Book with Confidence
We live nearby and are always available via text or the VRBO app. After booking, we’ll send you a quick message with a few easy questions to help us prep for your stay. Please respond—ghosting us may result in a canceled booking (and that’s no fun for anyone).
Pack your bags, bring your crew, and get ready for a stress-free, cozy, and slightly luxurious stay. We can’t wait to host you!





