Apartment in Rerik
Reasons to book
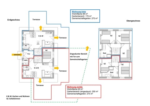
About this apartment rental
A short distance from surfing, cycling, and more, this pet-friendly apartment lets you experience it all. With the property's convenient onsite parking, you'll be ready to make the quick 7-minute drive to Rerik Beach or the 4-minute drive to Pier Rerik.
Relax in the garden (enjoy the outdoor furniture!) or sip a drink on the deck or patio of this 1033-sq-ft apartment. For a change of scenery, come inside and enjoy the WiFi and cable/satellite TV.
This 3-bedroom, 2-bathroom rental features a BBQ grill and a fireplace. Bathroom amenities include towels and toilet paper. The kitchen is equipped with an oven, a refrigerator, and a dishwasher, as well as a coffee maker, an electric kettle, and a microwave. And because there's a washer and dryer, you can go a bit lighter on your packing.




































