The Ridge Over Looking Center Hill Lake

Top rated by guests
Exterior
Interior
Pool
Terrace/patio
Outdoor spa tub
review stars
10.0Outstanding
(6 Ratings)
"2nd time to visit. Wonderful experience, very peaceful and beautiful home "
David C.
Don't miss out! Price and availability may change
10.0 / 10.0
Outstanding(6 Ratings)

Chalet in Center Hill Lake, TN

11 guests · 4 bedrooms · 4 baths

Reasons to book

Guests love it hereGuests give this property a top rating
Great for petsBring all your friends and family, even the furry ones
Top-tier experienceA high end property in this area

About this chalet rental

Welcome to "The Ridge Over Looking Center Hill Lake," your premier short-term rental nestled in the picturesque Blue Water Bay area. This enchanting getaway promises an unforgettable experience with its breathtaking views and luxurious amenities.

Perched high above Center Hill Lake, this retreat offers an unparalleled panoramic view that will leave you in awe. The property features a community pool where you can soak up the sun, and a hot tub strategically placed to provide a serene backdrop of the lake. The two garage doors effortlessly open, seamlessly merging the indoor and outdoor spaces, creating an immersive experience in nature.

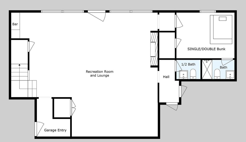
The interior is adorned with floor-to-ceiling windows, allowing natural light to flood the space and showcase the stunning surroundings. A large sectional invites you to relax and unwind, providing ample space for family gatherings and quality time. The master and one of the guest rooms boast private entrances to a balcony, offering a personal retreat to enjoy the tranquil atmosphere.

Indulge in a culinary experience at the oversized dining table, perfectly positioned to offer one of the best views of Center Hill Lake. This home spares no expense in providing both comfort and luxury, ensuring your stay is nothing short of extraordinary.

As the sun sets, gather around the perfectly located fire pit, where you can bask in the warmth of the flames while soaking in the mesmerizing views of the lake. "The Ridge Over Looking Center Hill Lake" is a haven that harmoniously blends modern comfort with the beauty of nature, creating a truly magical escape for your short-term getaway. Don't just dream it, book it! Your extraordinary escape starts with a click – reserve your moments of bliss today. This home is only pet-Friendly to dogs 25lb and smaller. This home is Dog-Friendly. $100.00 will be added for EACH dog up to TWO dogs.
For your peace of mind, the entire home is equipped with a backup generator in case of power outages.

Amenities at The Ridge Over Looking Center Hill Lake

Air conditioning
Pool
Non-smoking
Pets allowed
TV
Coffee/tea maker
Refridgerator
Kitchen
Balcony/Terrace
WiFi/Internet
Microwave
Dishwasher
Washing machine
Dryer
Patio
Kitchenware
Oven
Stove
Laundry services
Fireplace
Towels

Map of Center Hill Lake, TN


Ratings and reviews

10.0 / 10.0
Outstanding(6 Ratings)
10.0 / 10.0Outstanding·Aug 2025
2nd time to visit. Wonderful experience, very peaceful and beautiful home
10.0 / 10.0Outstanding·Mar 2025
Accross the board great expeience, beautiful home, beautiful views, great home layout, great ammenities, home has it all and very clean, and comfortable. Will stay again and save to my list of favorites
10.0 / 10.0Outstanding·Jun 2024
Great property! The house is absolutely stunning and the layout was perfect for our family to unwind and enjoy the lake. Wish it was just a bit closer to the marina but 15-20 minutes is not that big of a deal. The house made it well worth the short drive. It was an excellent neighborhood which made it great for a morning walk with our dog. While we never used the clubhouse and pool because we prefer the lake, it did look great when we checked it out. Definitely a great week and you will not be disappointed with this home!
10.0 / 10.0Outstanding·Jun 2024
This place is even better than the pictures. The attention to detail is on another level and we enjoyed every minute we were here.

$$$$
expedia logo

FAQs

Is parking included with this chalet?

Parking is not specified as an available amenity at The Ridge Over Looking Center Hill Lake. For more information, we encourage you to contact the property about where to park.

Is there a pool at this chalet?

Yes, a swimming pool is available for use at The Ridge Over Looking Center Hill Lake. Enjoy the water!

Is The Ridge Over Looking Center Hill Lake pet friendly?

Yes! This chalet is pet-friendly. For more information, we recommend contacting the booking provider about animal policies.

What amenities are available at The Ridge Over Looking Center Hill Lake?

We found 21 amenities for this rental. This includes air conditioning, pool, non-smoking, pets allowed, and tv.


Explore similar stays in Center Hill Lake

Explore all stays