Apartment in La Clusaz
Reasons to book
About this apartment rental
3*** rating / 4 GUESTS
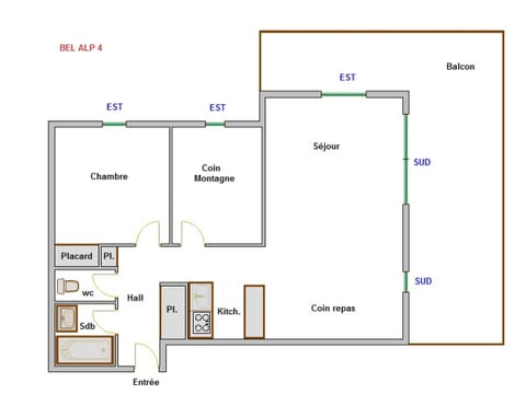
2 ROOMS + SLEEPING NOOK / 6 guests/ 49 m² / 1st floor / South facing
Residence located in the CONFINS valley, at 850 m from the village, nearby LE NANT slope and at 350 m from BOSSONNET Telemix (6-seater combined chairlift and cable car), chairlift, ski lift (ski lessons departure / contact Schools). Bus stop at 100 m.
- HALL (7.20 m²)
- BEDROOM (8.60 m²): 1 DOUBLE BED (140), east facing window, residence view
- SLEEPING NOOK (5.98 m²): 2 BUNK BEDS (90) -> upper bed forbidden under 6 years old, east facing window, residence view
- BATHROOM (2.88 m²): bathroom washbasin, bathtub, WASHING MACHINE, TOWELDRYER radiator
- Independent WC (1.04 m²)
- KITCHEN open to living room: fridge + freezer, combination MICROWAVE OVEN, INDUCTION TABLE, DISHWASHER, dining area
- LIVING ROOM (23.55 m²) : 1 CONVERTIBLE CORNER SOFA (140), flat-screen TV, east + south windows, sliding bay, south-east corner balcony, residential/mountain view
Pets allowed – €15/day/pet.
DUVET COVERS, SHEETS AND PILLOWCASES PROVIDED. NO SMOKING APARTMENT. NOT ACCESSIBLE TO PEOPLE WITH REDUCED MOBILITY. SAWMILL NEARBY. GARAGE (1st on the left). 2 Ski locker.
Access to the apartment by downward stairs.
Electric heating system with an under-floor heating base.
Residence of 8 apartments, built in 2000.
Annecy train station: 34km / La Clusaz bus station: 1.45km.
Bonus : Luminous apartment
Optional services to be paid on site and to be booked before your arrival:
. WiFi box rental / week : 39.0 € per stay
. Animal supplement : 105.0 € per stay
. Mid-stay cleaning : 50.0 € per stay
. Bath mat : 5.0 € per stay
Property managed by a professional. Unless stated, services such as cleaning, bed linen, towels etc. are not included in the price of this rental. If pets are allowed (information in the advertisement), charges may be applicable.
Only equipment mentioned in this advertisement are present. Equipment not mentioned are not considered to be present. Unless there is an electric charging station in the accommodation, charging electric vehicles is prohibited.
Residence located in the CONFINS valley, at 850 m from the village, nearby LE NANT slope and at 350 m from BOSSONNET Telemix (6-seater combined chairlift and cable car), chairlift, ski lift (ski lessons departure / contact Schools). Bus stop at 100 m.





