House in Southport
Reasons to book
About this house rental
This unique property offers comfort, convenience, and character for a memorable escape in the heart of Southport
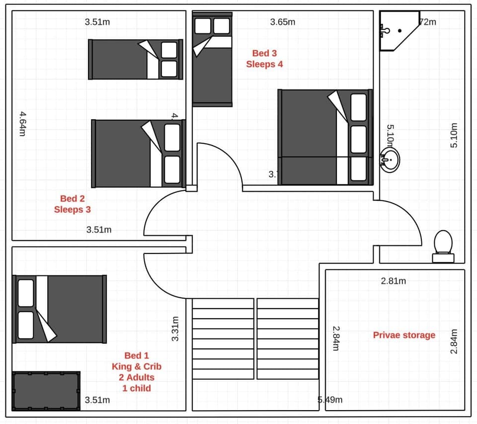
Southport Rabbit Retreat offers spacious and versatile accommodation across two floors, perfect for groups of up to 15 guests.
• Top Floor: Features 3 bedrooms and a bathroom, comfortably sleeping guests.
• Bedroom 1: King bed
• Bedroom 2: Sleeps 3 with 1 single bed and 1 double bed
• Bedroom 3: Double bunk bed, single top and single bed
• Mid Floor: Includes a large open-plan living and dining room, a fully equipped kitchen, a bathroom, a separate WC, and 2 bedrooms, a large double master bedroom. with a double bed and 2 single beds, along with another double bedroom.
Conveniently located above the Rabbit Inn pub and steps from Southport’s high street, this retreat combines comfort, space, and an ideal location for a memorable stay.





