Apartment in Saarlouis
Reasons to book
About this apartment rental
Close to cycling, this smoke-free apartment brings it all within reach. With convenient onsite parking, you'll be ready to make the 5-minute drive to Saar-Hunsrueck Nature Park or the 9-minute drive to Westwall Bunker.
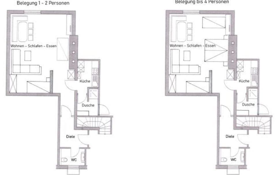
Relax in the garden or sip a drink on the deck or patio of this 592-sq-ft apartment. For a change of scenery, come inside and enjoy the WiFi, cable/satellite TV, stereo, and DVD player.
The kitchen is equipped with an oven, a stovetop, and a refrigerator, as well as a coffee maker, an electric kettle, and a toaster. Bathroom amenities include a hair dryer and towels. Other amenities include bed sheets and heating.






















