House in Whitby
Reasons to book
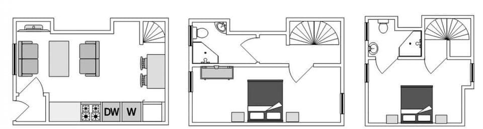
About this house rental
Located in Whitby, this welcoming vacation home brings it all within your reach. There's convenient nearby parking, so you can leave your vehicle behind and head out to Whitby Harbour and Pannett Park, just a short walk away. If you're looking to expand your horizons and see other nearby locales, you can catch a train at Whitby Station, located within a 5-minute walk of your stay.
For your convenience, there's an electric kettle and a toaster. Other amenities at this 2-bedroom, 1-bathroom rental include a desk and heating.
