House in Alto, NM
Reasons to book
About this house rental
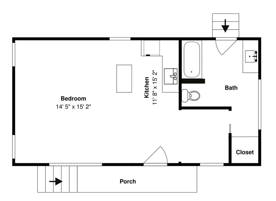
Step inside to find a cozy studio-style layout, featuring hardwood floors throughout. The custom-designed kitchenette boasts modern amenities, including a microwave, mini fridge, and coffeemaker, while the kitchen island doubles as a dining table with barstool seating for two.
Relax in the plush queen-size bed, complete with a large dresser for your belongings and a flat-screen TV for entertainment. The sizable bathroom offers a combination shower/tub for added convenience.
Outside, enjoy the crisp mountain air from the comfort of the front porch, equipped with an outdoor dining set and gas grill. The fenced-in backyard provides a safe space for your pup to play while you soak in the serene surroundings.
Explore the wonders of Alto and its surroundings with ease. From skiing at Ski Apache to hiking trails in the nearby wilderness, outdoor adventures abound. Don't miss the opportunity to experience the cultural heritage of Flying J Ranch, just steps away, or indulge in local dining and shopping options nearby.
Experience the perfect blend of comfort and convenience at Double Eagle 2—a haven where relaxation meets adventure. Book your stay today and embark on a journey to unforgettable mountain bliss.
Please Note: A pet fee of $100 applies for each pet.





