Apartment in Mecklenburgische Seenplatte
Reasons to book
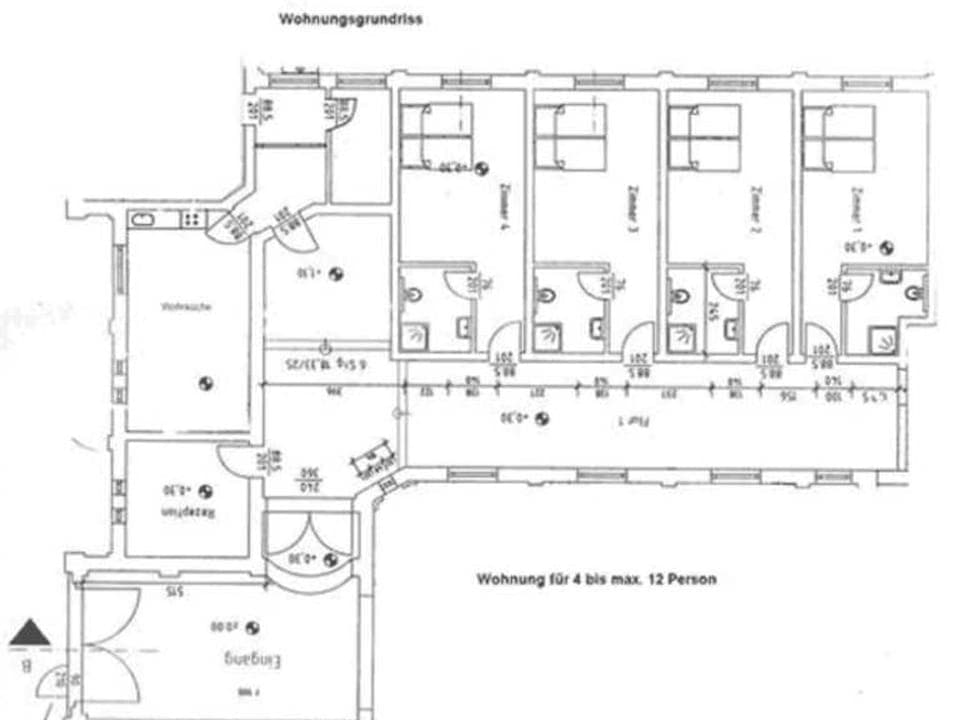
About this apartment rental
Close to cycling, hiking trails, and more, this pet-friendly apartment brings it all within reach. Mecklenburg Switzerland and Lake Kummerow Nature Park is an easy 15-minute walk away, so you can leave your car at the property, which offers onsite parking, or jump in your vehicle to make the 16-minute drive to Oase.
Relax in the garden (enjoy the outdoor furniture!) of this 258-sq-ft apartment, which also offers a BBQ grill. For a change of scenery, come inside and enjoy the WiFi and cable/satellite TV.
The kitchen is equipped with an oven and a dishwasher.





