House in Wilkes-Barre, PA
Reasons to book
About this house rental
Very stylish throughout with large gourmet eat-in kitchen, 3 workstations, fast WiFi, deep soak bathtub, mini split ductless heat/AC in every, room darkening blinds and smart locks.
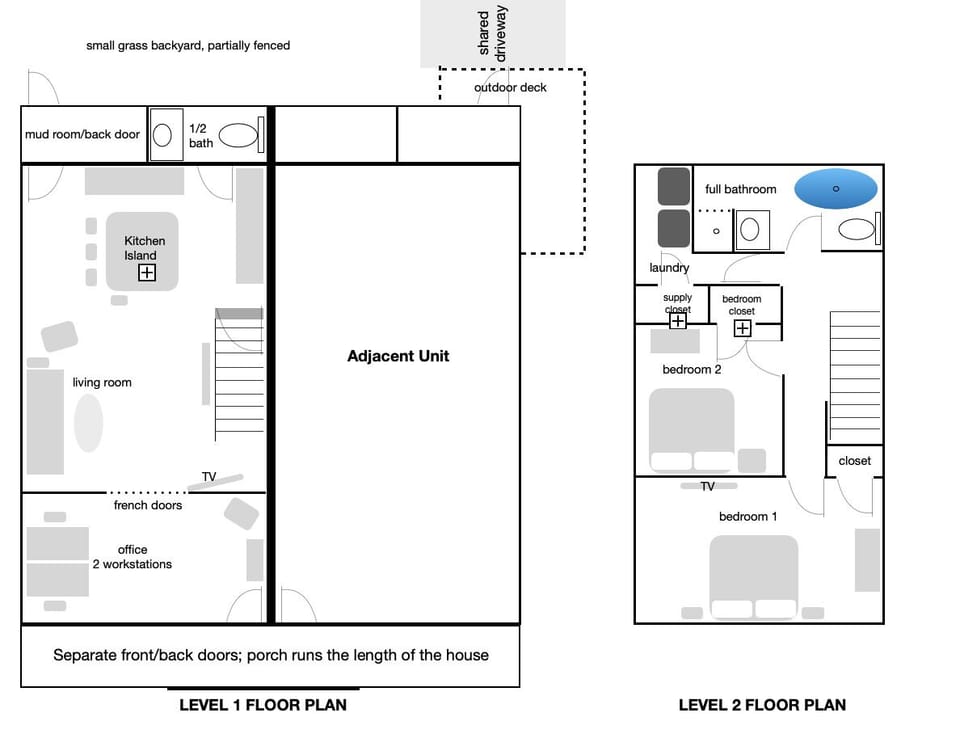
Downstairs features double workstations in spacious office with modern double French doors for privacy and a smart tv. Keep the doors open to walk into the living room with another smart tv, the open kitchen featuring the extra large center island stocked with everything you need to cook meals and have your morning espresso. The half bathroom is off the kitchen, as well as an enclosed porch and back door.
Upstairs you'll find both queen bedrooms with crisp white linens, ductless Heat/AC, a large bathroom with separate rain shower and deep soak roman tub, and a separate laundry room.





