Cottage in Île-de-France
Reasons to book
About this cottage rental
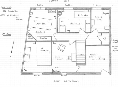
7 minutes from one of the most beautiful villages in France, Yèvre Châtel, 10 minutes from the twisted bell tower of Puiseaux, 20 minutes from the Buthiers Leisure Island, 40 minutes from the Château de Fontainebleau, and 1 hour from the Château de Sully-sur-Loire. On the ground floor: an entrance hall, a large living room with a fully equipped kitchen opening onto the dining room and living room (TV) overlooking the interior courtyard, a separate toilet, and a laundry room (washing machine, dryer, small refrigerator).
Upstairs: 3 bedrooms, one with a 160x200 cm bed, another with a 140x200 cm bed, and the last with two 90x200 cm beds (which can be joined together upon request to create a 180 cm bed), a separate bathroom (bathtub, sink, bidet), and a separate toilet.
OUTSIDE: Courtyard enclosed by a gate at the rear of the house with a terrace (garden furniture, barbecue, and electric grill). Covered carport with a ping-pong table. Parking for 2 cars is available in the courtyard.
€300 deposit (or €400 for pets). Sheets and towels provided, end-of-stay cleaning included. Utility charges are included within the limits of reasonable consumption.
/!\ Non-smoking cottage. Fireplaces not available. /!\ Accommodation not suitable for people with reduced mobility.
Non-smoking cottage. The chimneys are unusable as they are.
Property managed by a professional. Unless stated, services such as cleaning, bed linen, towels etc. are not included in the price of this rental. If pets are allowed (information in the advertisement), charges may be applicable.
Only equipment mentioned in this advertisement are present. Equipment not mentioned are not considered to be present. Unless there is an electric charging station in the accommodation, charging electric vehicles is prohibited.
End of stay cleaning is included.





