Apartment in La Clusaz
Reasons to book
About this apartment rental
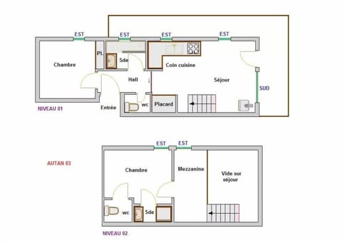
Accommodation: AUTAN N° 3 PERRISSOUD Ranking 3*** / 6 TRAVELERS 3 ROOMS + MEZZANINE / 6 travelers / 55 m² (including 1 m² upper bed prohibited -6 years + 1 SINGLE BED (90), east window, view near - BATHROOM (2.94 m²): sink, shower, TOWEL DRYER radiator, WASHER DRYER, east window - Independent WC (1.39 m²) - KITCHENETTE: fridge-freezer (183 L), oven, INDUCTION HOB, MICROWAVE, DISHWASHER, NESPRESSO machine, east window - LIVING ROOM (19.75 m²): dining area, flat screen TV, STOVE, east window, view of meadows, bay + French window, south east corner balcony, view of meadows / neighboring residence / mountain Access to the upper floor: - MEZZANINE (6.83 m²) open to the living room: 1 SINGLE BENCH BED (80), small east window - BEDROOM (9.89 m² including 1m² attic): 1 DOUBLE BED (160), adjoining bathroom (1.33 m²) with sink, shower, TOWEL DRYER radiator, separate WC (0.67m²), small east window DUVET COVERS, SHEETS AND PILLOWCASES PROVIDED. PETS NOT ALLOWED. NON-SMOKING APARTMENT. NOT ACCESSIBLE TO PEOPLE WITH REDUCED MOBILITY. Internet access. GARAGE (1st garage of the 1st lot of garages). Access to the residence by external staircase. Ski locker. Central heating by radiators. Residence of 4 apartments, built in 1973. Annecy SNCF station: 35km / La Clusaz bus station: 2.15km. The little extra: Spacious, well-equipped and decorated apartment
Details: Near airport : Lyon Saint-Exupéry Airport #LYS (151.1 km), Turin Airport #TRN (156.0 km), Geneva International Airport Cointrin #GVA (51.7 km) Deposit (in euros) : 500 Surface (m²) : 55 Animals not allowed Number of bathroom : 2 Microwave oven Dishwasher clothes dryer Car park Television Balcony Number of bedrooms : 2 Floor Number of pieces : 3 Number of cabins : 1 Number of double bed : 1 Number of single beds : 4 Number of toilets : 2 Ski locker Washing machine Distance Tracks : 600 metres Distance Ski School : 2000 metres Exposure : South Number of stars : 3 Cooked : 1 Wireless kettle Toaster Ironing board and iron Hair dryer Dishes and cutlery : 1 Raclette machine Vacuum cleaner Heating : 1
Reference: 781964




































