Cabin in Sevier County, TN
Reasons to book
About this cabin rental
As seen in Only In Your State!
Discover the ultimate Smoky Mountain escape at Waterfall Woods Lodge, a secluded, creekside paradise on five private wooded acres—complete with your very own private waterfall! Experience the perfect balance of privacy, luxury, and convenience, as you're just 20 minutes from Dollywood & Pigeon Forge and 35 minutes to downtown Gatlinburg.
Why Stay Here?
Private Creek & Waterfall: Your very own tranquil retreat with no visible neighbors—just you and nature.
FREE Attraction Tickets: Enjoy one free ticket per attraction per day (subject to availability) to top destinations like Dollywood, Pirates Dinner Show, Comedy Barn, Whitewater Rafting, and more!
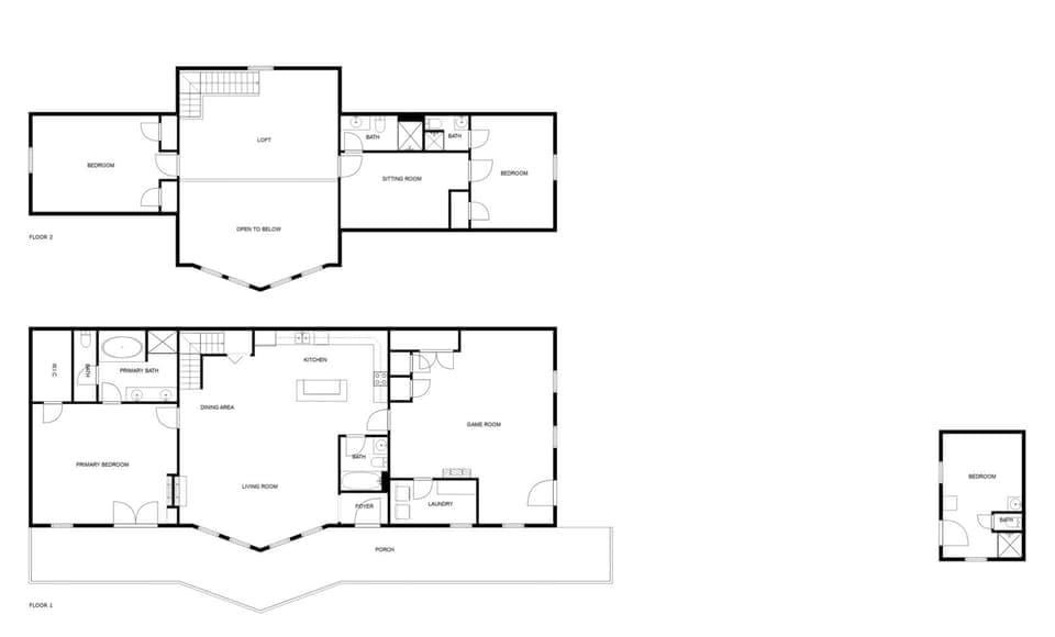
Luxury & Comfort: Spacious 4-bedroom, 5-bathroom lodge sleeping up to 22 guests—ideal for family getaways and multi-generational gatherings.
Unmatched Amenities:
Hot tub overlooking the waterfall
Massive game room with pool table, arcades, shuffleboard, and bar area
Wraparound deck & fire pit with breathtaking views
Pet-friendly (with fee, limit 2)
YouTube TV & High-Speed WiFi
Fully equipped kitchen & open-concept living space
Unique Tiny House: An extra private retreat featuring a queen suite and bathroom.
Convenient Location: While blissfully secluded, you’re still close to all the top attractions of Pigeon Forge and Gatlinburg.
Sleeping Arrangements
2 King Suites (one on each level)
1 Family Bedroom (Queen, Full, & Twin Bunks)
Loft Areas: 4 sofa beds (2 in each loft)
Game Room: 2 single pullout beds
Tiny House: Private Queen Suite with bath
Important Information
Must be at least 22 to rent (no exceptions)
No parties, no fraternities (family-friendly gatherings within occupancy limit allowed)
Wraparound driveway with ample parking (steep drive; AWD/4WD recommended in winter)
***As of July, 2025 the owner has installed a new high end water filtration system.
Cancellation Policy:
100% refund if canceled 30+ days prior
50% refund if canceled 14+ days prior
Book Your Unforgettable Stay!
Don't miss this one-of-a-kind Smoky Mountain retreat—where the sights and sounds of your private waterfall create an unforgettable backdrop for your vacation. With luxurious amenities, privacy, and easy access to top attractions, Waterfall Woods Lodge is your perfect home away from home!
Reserve your dates now!





