House in Key West, FL
Reasons to book
About this house rental
1. MAIN HOUSE
Overview
The Main House is a two (2) story 100+ year old, recently completely renovated “Conch” house. The house has an open downstairs floor plan, and four (4) private bedrooms upstairs. There is a downstairs wraparound porch, and a complimenting upstairs wrap around balcony, both of which overlook the pool, sundeck and Thomas Street. All window, door and floor trim is turn of the century style, and all windows are 6 / 6 double-hung sash.
The house has a Starlink high speed wi-fi network, streaming internet TV, and four (4) SMART HDTVs ((2) 40" Samsung SMART HDTVs, (1) 40" Sony SMART HDTV, and (1) 32" Samsung SMART HDTV). The house has five (5) tons of central air conditioning, and six (6) 52″ Hunter ceiling fans; there is a full size Whirlpool washer and dryer located at the rear of the house. There is a propane barbecue located on the pool deck.
The house can comfortably accommodate a maximum of eight (8) guests.
All linens and towels are furnished.
There are two (2) off-street parking spaces on the property.
First Floor
The kitchen, dining room, living room are located on the first floor. Located off the living room is a half bathroom, which has a pedestal sink. The downstairs floor is a Golden Oak Pergo, and the downstairs ceiling is 9’ high.
Kitchen
The contemporary galley kitchen is new with maple cabinets, Corian countertops, and a double compartment, integrated Corian sink. Kitchen equipment includes a GE range, GE microwave, GE dishwasher, garbage disposal, Samsung side-by-side refrigerator with icemaker and serve through ice and water dispenser, coffee maker, toaster, dishes, flatware, glasses (service for 8), pots, pans, and all basic cooking utensils. There is a set of two (2) French doors providing access from the kitchen to side porch, pool, and sundeck.
Dining Room
The dining room has a wood Parson's dining room table with seating for eight (8). There is a ceiling fan in the dining room.
Living Room
The living room has a sectional sofa with a queen sleeper and a lounge seat, a reading chair, an entertainment center, and a 40" Samsung SMART HDTV. The living room has recessed lighting, and a 52" Hunter ceiling fan.
Second Floor
The second floor has four (4) private bedrooms – (2) queen beds and two (2) full beds. Each bedroom has a ceiling fan, and there is a 40" Samsung SMART HDTV in one bedroom, a 40" Sony SMART HDTV in another bedroom, and a 32" Samsung SMART HDTV in another bedroom. One bedroom provides access to the 275 square foot wrap around balcony, which overlooks the pool and sundeck, and Thomas Street. The second floor is carpeted, and there is a new full bathroom located on the second floor.
2. TURTLE HOUSE
Overview
The Turtle House is a 100+ year old recently completely renovated “Conch” house. The house can be described as having “an open, crisp, private space”. The house has two (2) gabled ceilings, which creates a contemporary, spacious living environment. The downstairs floor is Golden Oak Pergo. All window, door, and floor trim is turn of the century style, and all windows are 6/6 double-hung sash. All linens and towels are furnished.
The house has a Starlink highspeed Wi-Fi network, a 43" Samsung SMART HDTV, and two (2) 26" Samsung 26″ SMART HDTVs. The house has central air conditioning, a ceiling fan, and access to a stacked washer and dryer. There is a stainless steel propane barbecue located on the pool deck.
The house can comfortably accommodate a maximum of five (5) guests – who are comfortable sharing an open living environment.
First Floor
The kitchen, dining, living, and bathroom are located on the first floor. An architectural beam containing halogen lighting extends the entire length of the house. The bathroom, located off the living room, is completely new and has recessed LED lighting, a full shower, and sink. There are two (2) sets of French doors providing access to the rear courtyard where the 8’x10′ heated Jacuzzi is located.
Kitchen
The contemporary galley kitchen is new with maple cabinets, black Zimbabwe granite countertops, stainless steel single compartment sink, and the ceiling has recessed LED lighting. Kitchen equipment includes an under the counter GE refrigerator, an under the counter Sub-Zero freezer with icemaker, a stainless steel electric range, garbage disposal, Quasar microwave, and Braun coffee maker, Krupps toaster, dishes, flatware, glasses (service for 6), pots, pans, and basic cooking utensils.
Dining Room
The dining room has a wood Parson's dining room table with seating for six (6), and a maple with black Zimbabwe granite service credenza – complete with wine rack.
Living Room
The living room has one (1) queen sleeper sofa, a queen bed, a relaxing chair, a 43" Samsung SMART HDTV, and an Onkyo receiver.
Master Loft Sleeping Area
A staircase is used to access the master loft sleeping area. The loft has a queen size bed and a 26" Samsung SMART HDTV.
Guest Loft Sleeping Area
A staircase is used to access the guest loft sleeping area. The loft has a full size bed and a 26" Samsung SMART HDTV.
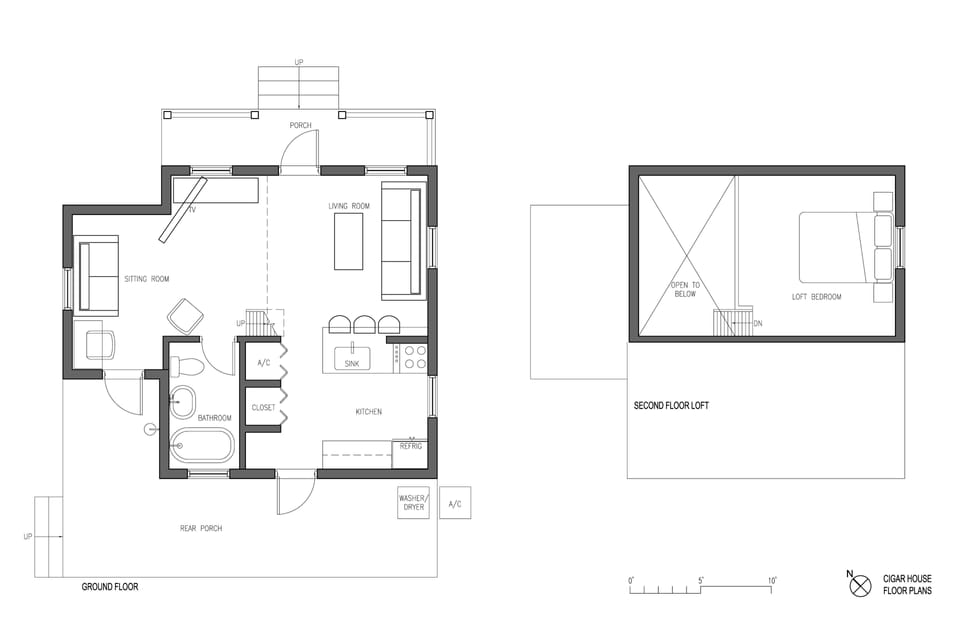
3. CIGAR HOUSE
Overview
The Cigar House is a 100+ year old “Cigar maker’s house”. The recently completely renovated house is charming, spacious, secluded and private. The cottage has a raised vaulted wood ceiling, creating a rustic, Caribbean ambiance. The downstairs floor is the original Dade County Pine. All window, door, and floor trim is turn of the century style, and all windows are 6/6 double-hung sash. All linens and towels are furnished.
The house has a Starlink high speed wi-fi network, a 32" Sony SMART HDTV, and a 26" Sony SMART HDTV. The house has central air conditioning, a ceiling fan, and a stacked LP washer and dryer. There is a stainless steel propane barbecue located on the pool deck.
The cottage can comfortably accommodate a maximum of four (4) guests – who are comfortable sharing an open social living environment.
First Floor
The kitchen, living, dining, sitting, and bathroom are located on the first floor. The living room has a queen sleeper sofa/daybed, a 32" Sony SMART HDTV. The bathroom, located off the living room, has been recently completely renovated and has a vaulted ceiling and full sized marble walk-in shower.
Kitchen
The kitchen is new and contemporary with mahogany cabinets, white Corian countertops, and integrated Corian sink, and serve thru access to the dining room. The ceiling is vaulted with architectural beams and LED lighting. The kitchen has a pantry, refrigerator, electric range, garbage disposal, microwave, and Braun coffee maker, Krupps toaster, dishes, flatware, glasses (service for 6), pots, pans, and all the basic cooking utensils. There is a French door providing access to the rear deck where the washer and dryer are located.
Loft Sleeping Area
A ladder is used to access the loft sleeping area. The loft has a full size bed, and a 26" Sony SMART HDTV.
4. CONCH HOUSE
Overview
The Conch House is a 100+ year old “Cigarmaker’s house. The house is recently renovated, charming, spacious, secluded and private. The raised vaulted ceiling creates an open living environment. The downstairs floor is the original Dade County Pine. All window, door, and floor trim is turn of the century style, and all windows are 6/6 double hung sash. All linens and towels are furnished.
The house has a secured Starlink wi-fi network, a 32" Sony SMART HDTV, and a 26" Samsung SMART HDTV. The house has central air conditioning, a ceiling fan, and a stacked LP washer and dryer. There is a stainless steel propane barbecue located on the pool deck.
The house can comfortably accommodate a maximum of five (5) guests – who are comfortable sharing an open sociable living environment.
First Floor
The kitchen, living/dining room, a small bedroom, and a full bathroom. There is a queen sleeper sofa/day bed and a 32" Sony SMART HDTV in the living room. There is a full bed in the small bedroom located between the kitchen and the living room. The bathroom, located off the small bedroom, has been recently completely renovated – it has a vaulted ceiling, recessed lighting, oak cabinets, and black granite vanity top.
Kitchen
The kitchen has serve thru access to the dining/living room. The kitchen ceiling is vaulted with recessed LED lighting. There is a stainless steel gas range, a stainless steel refrigerator, microwave, Braun coffee maker, garbage disposal, Krupps toaster, pots & pans, all basic cooking utensils; and dishes, flatware, glasses (service for 6). There are (2) French doors providing access to the rear deck where the washer and dryer are located.
Loft Sleeping Area
A ship's ladder is used to access the loft sleeping area. The loft has a full size bed, and a Samsung 26″ HDTV.
CHICKENS & ROOSTERS
The City of Key West protects chickens and roosters, and considers them as part of the history and charm of Key West. As a result, Key West and many of the islands throughout the Florida Keys have free-range chickens and roosters. You will definitely see and hear chickens and roosters during your stay in Key West. Some visitors to Key West love them, and some visitors hate them - personally, I enjoy them best roasted, with plantains, and black beans and rice!





