Campground/ RV Resort in Dieppe
Reasons to book
About this campground/ rv resort rental
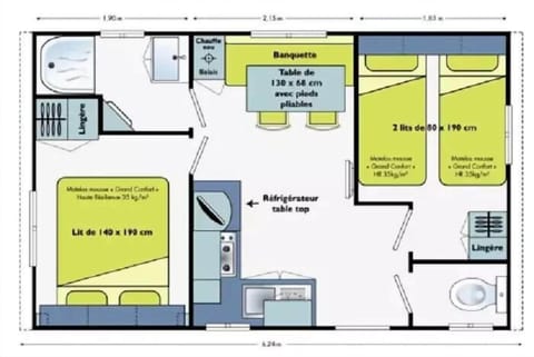
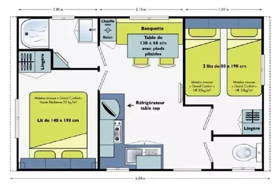
Accommodation: 3 Room Mobile Home 4 People with:
Living area
Equipped kitchen area
1 bedroom with a double bed
1 bedroom with 2 single beds
Shower room with WC
Terrace
Equipment: The accommodation includes:
Television
Kitchen area: hob, fridge/freezer, microwave, crockery/cutlery
Outside: garden furniture, barbecue
pillows and blankets are provided
Details: Beach Access : 1200 m Disabled access Accessible by train : Dieppe (4.6 km) Playground for children : yes Family animations : in July August Pets allowed : Only one animal per rental (excluding 1st and 2nd category dogs); between 2€ and 3,50€/day - to be paid on site Deposit (in supplement) : 370 Lake / river distance : 1200 m Laundromat : washing 5€, dryer 2.50€ - to be set on the spot Crib : free loan, subject to availability Sheets rental : 10€: single bed, 12€: double bed (covers and pillows provided) - to be set on the spot Final cleaning : 70€/rent - to be paid on site Number of stars : 4 Water park : swimming pool of 110m2, swimming pool of 40m2, paddling pool of 40m2, opening from 15 May to 15 September Sin : 3 fishing ponds on site bowling Swimming pool : 2 external basins - opening from 15 May to 15 September Near airport : London Gatwick Airport #LGW (194.3 km), Charles de Gaulle International Airport #CDG (195.1 km), Paris Orly Airport #ORY (198.8 km) Tourist tax (surcharge) : 0.60€/night/person (+18 years) - to be paid on site Television : Included Multisports ground : yes Pets Allowed : Only one animal per rental (excluding 1st and 2nd category dogs); between 2€ and 3,50€/day - to be paid on site Deposit (in euros) : 370 Cooked Bedding Microwave oven Number of bedrooms : 2 Number of double bed : 1 Number of single beds : 2 Number of pieces : 3 Number of toilets : 1 Number of bathroom : 1 Cooking plate Fridge Garden Lounge Surface (m²) : 22 Television Terrace Dishes and cutlery
Reference: 84368
































