Castle / Palace in Normandy
Reasons to book
About this castle / palace rental
After 375 years, this historic château has been brought back to life with the love and exquisite taste of its new owners, who have transformed it into an incredibly stylish and elegant haven. Previous owners of this estate have been traced back as far as 1495 and some records suggest that the Abbot of Mont Saint-Michel may have been the owner of the surrounding land.
Guests are treated to 60 acres of park and woodlands listed as a ‘site classé’ and offering many restored walking paths, beautiful at all times of the year. There is even a rather mystical Cèdre du Liban reputed to have magical powers.
From its privileged location in the stunning Basse Normandie, it is only a 50-minute drive away from three local jewels; Mont St Michel, Bayeux and the D-Day landing beaches and important sites. The immediate area is home to a popular cycling route, so plenty of safe cycling is on hand and can be enjoyed thanks to the château's complimentary bikes.
After a lengthy and meticulous restoration guests can now enjoy up to 10 elegant bedrooms, plenty of comfortable living areas, a library, a fabulous kitchen as well as a gym and a tennis court. The extremely well-equipped kitchen is a real centre piece of the château and a great place to cook and socialise together with friends and family, but when a break from cooking is required the château can organise great meals by its excellent chef and even breakfast.
Outside there are beautiful lawns, the White Terrace and a spectacular enclosed ‘potager’ offering fresh organic fruit and vegetables for most of the year.
Château Quatre Saisons is one of those rare finds where history, natural beauty and exquisite taste have come together to create a masterpiece...a masterpiece just like the magnificent tapestry that hangs in nearby Bayeux.
Features:
Château Interiors - 3 levels
10-person price: 5 bedrooms, 5 bathrooms
18-person price: 10 bedrooms, 9 bathrooms
Ground Floor
- Large Hallway
- Fully equipped kitchen (with three ovens)
- Breakfast room
- Library in the tower
- Dining room with huge historic fireplace, sofas, dining table for up to 12 guests
- Gallery sitting room
- Large formal salon with sofas and dining table for up to 12 guests
First Floor
- Primary suite with double bed, library, private dressing room and bathroom with soaking tub and walk-in shower
- Double room with king size bed (200x190cm). Bathroom with bath and hand-held shower. Wonderful park views. 17m2
- Double room with super king-size bed (220x190cm) and marble fire-place. Bathroom with roll top bath and walk-in shower. Wonderful park views. 30m2
- Double room with old French painted bed (190x140cm) tucked in an alcove. Shower room. View of courtyard garden. 16m2
- Double room with king-size bed (200x150cm). Bathroom with walk-in shower and WC. Located next to the main suite. View of courtyard garden. 17m2
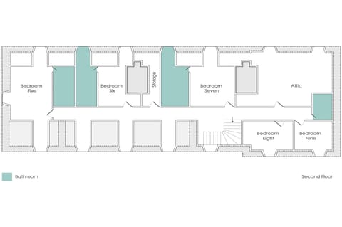
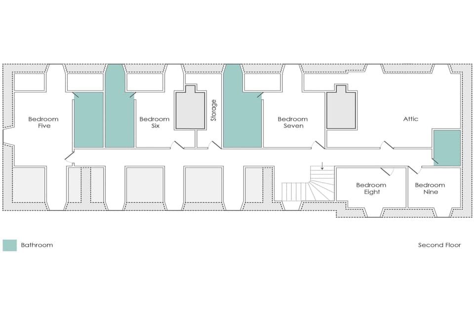
Second Floor
- Double room with king-size bed (200x160). Small shower room. Triple aspect views to park, valley and rear of house. 28m2
- Twin room (each 190x90). Large shower room. 16m2
- Double room with king size bed (200x160). Large shower room. Courtyard views. 15m2
- Small double with traditional French bed (190x140). Beautiful park views. 10m2
- Small double tucked into the eaves with small bed (190x125) and park views. 9m2
- Shower room (to be shared between above two double bedrooms)
Outside Grounds
- Lawned gardens
- Walled potager (garden with organic fruit and vegetables)
- 60 acres of private park and woodlands (Listed as a 'site classé')
- Barbecue
- All-weather artificial grass tennis court – rackets and balls provided
- Woodland walks
- Croquet
- Boules
Facilities
- Gym (located in the cellar)
- TV (equipped with Apple TV)
- Wi-Fi
- Grand piano
- Pinball machine
- Table football
- Extra beds/mattresses available on request
- One working fireplace
- 4 chateau bikes (complimentary use)
Location:
Château Quatre Saisons offers the perfect base for an unforgettable French escape in Normandy . Whether you’re drawn to the region’s rich history, stunning coastline, or charming villages, this idyllic location places you within easy reach of Normandy’s most captivating sights. Just beyond the château's own woodlands, there is a cycling and hiking path which leads all the way to the coast.
The traditional village of Domjean is only 3km away, home to a grocery store, bakery and restaurant-bar serving lunch. There are larger supermarkets near Tessy-sur-Vire (5km) and Torigny-les-Villes (9km). Discover atmospheric markets across local villages and towns as well as abbeys, châteaux and gardens across the region.
Around a 20-minute drive away, the town of Saint-Lô (17km) stands as a testament to resilience, its imposing ramparts and bustling streets offering a glimpse into its medieval and wartime past. Visit on a Friday morning to experience its wonderful market and look out for the 'Les Virées du Terroir' market selling regional produce and crafts on a Thursday evening in the summer months.
Bayeux (46km) is an especially beautiful town, home to the world-famous tapestry depicting the Norman conquest of England – a must-see for any visitor.
For a day by the sea, Granville (50km) blends seaside elegance with artistic flair, home to sandy beaches, a historic old town, and the Christian Dior Museum. History enthusiasts can explore the D-Day Landing beaches, where the events of June 1944 changed the course of history, or visit the solemn memorials and museums that bring the stories of World War II to life. Arromanches-les-Bains and Omaha Beach are both around an hour by car.
The UNESCO World Heritage site of Mont Saint-Michel (70km) is another unmissable experience. This breathtaking island abbey rises dramatically from the tidal flats, its spires and medieval streets creating an unforgettable silhouette against the Normandy sky.
Further afield, venture towards the Cotentin Peninsula for dramatic cliffs and unspoilt beaches, or take a scenic drive towards Honfleur (128km), where half-timbered houses and a picturesque harbour provide the perfect setting for a leisurely stroll.
Terms & Conditions:
?
£1000 charged to client’s credit card by the owner before arrival and refunded two weeks after departure, subject to full inspection.
4.00 p.m.
10.00 a.m.
Yes.
Yes.
No.
When booking the 10-person price, only 5 bedrooms and 5 bathrooms will be available for guests to use. All 10 bedrooms and 9 bathrooms will be available for guests to use when booking the 18-person price.
The château's gardien lives on site in a separate cottage and is also on hand to prepare delicious meals as a trained chef.
When booking the 10-person price, please let the owners know which bedrooms you wish to be made up for your stay.
Flexible.
Yes. However, guests are required to leave the accommodation clean, tidy and in the same condition as on their arrival. Any extra cleaning, laundry, maintenance and/or rubbish disposal required will be charged against the security deposit.
Outdoors only.
Stag/hen parties and any other celebrations/special events are on request only and subject to prior arrangement with the owner and additional charges.
5 nights.
Yes, and wood for the fire.
Yes.
Smoking - not allowed





