House in Salzburgerland
Reasons to book
About this house rental
This 300-year-old farmhouse was renovated for you in 2015. Whether you are on a skiing or hiking holiday or just want to relax during a short stay, this holiday home is always the right choice and is ideal for a short break or longer stay with friends and family. The house is located 3.5 kilometres above Hüttau, your starting point to the Salzburger Sportwelt Amadé.large, old farmhouse (renovated in 2015) above Hüttau near the Sportwelt Amadé
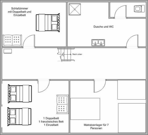
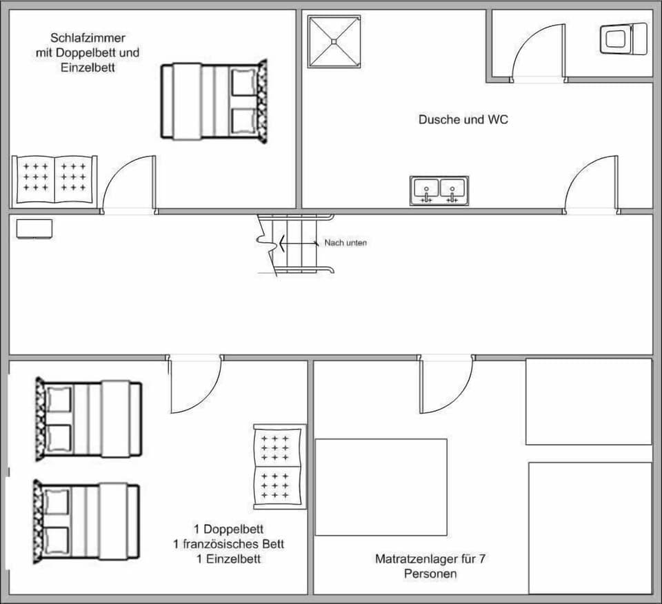
You live alone in a very simply furnished old farmhouse. With a living space of 150 m², it is ideal for twelve people. The hut has central heating, which is supplied by the pellet stove in the farmhouse parlour. The cosy, rustic-style kitchen on the ground floor is heated by a wood-burning stove and is fully equipped with a hob, oven, coffee machine, fridge, microwave, dishwasher and kettle. There is plenty of room for everyone at the large dining table, whether for breakfast to get off to a good start or when meeting for dinner after an eventful day. One bedroom and one of the two bathrooms with shower and WC are also located on the ground floor of the house. The second shower room and the three remaining bedrooms are on the upper floor. The first bedroom has a standard-width double bed. In the second room there is a dormitory for seven people consisting of two double beds and three single beds next to each other. All beds have a normal width. The third bedroom has a normal width double bed, a French double bed (140 cm wide) and a normal width single bed. Finally, the fourth bedroom has a normal width double bed and a single bed, meaning that the house can accommodate a maximum of 19 people.
The property is not fenced in. However, dogs are welcome to run free. Ten guest car parking spaces are available at the house.
In winter you will need snow chains for the ascent to the farmhouse (3.5 kilometres). Internet access (30 Mbit/s) and firewood are already included in the rental price.
The nearest shopping facilities can be found down in Hüttau. No matter how you want to spend your holiday, active or just lazing around. You can quickly reach the ski areas in the Salzburger Sportwelt Amadé, to the 870 kilometres of perfectly groomed ski slopes with the most modern lifts. The house is also the ideal starting point for hikes in the surrounding mountains with numerous inviting alpine huts, for historical excursions to castles and palaces in Salzburger Land or visit sights such as the largest ice cave in the world, the "Eisriesenwelt". An excursion to the unique "Grossglockner High Road" should also not be missing from your holiday plans.
House information: Bathrooms: 2; Bedroom: 4; Detached building; Property area: 220000 m²; Total number of floors in the building: 2; Year of construction: 1700; Year of renovation: 2015
Sleeping facilities: Number of double beds (1.80 m width): 7; Number of single beds: 6; Number of double beds (from 1.31 m to 1.50 m width): 2
Living area: Cable-tv; CD-Player; Fireplace; Radio; Woodburning stove
Bath/WC: Shower; Shower; Shower; Sink; Sink; Toilet; Toilet; Toilet
Kitchen: Coffee machine; Dishwasher; Freezer; Fridge; Microwave; Oven; Stove; Water boiler
Other: Heating; Mountain hut; Mountain view; Owner lives on the property; Pets allowed: max. 2; Wifi
Extra costs:
- Bed linen: once per person Costs amounting to 8 EUR (Mandatory).
- firewood: included in price .
- Final cleaning: once per object Costs amounting to 200 EUR (Mandatory).
- energy costs: included in price .
- Towels: once per person Costs amounting to 8 EUR (Mandatory).
- Pet: per pet and day Costs amounting to 10 EUR (optional).
- Internet: included in price .
- General: once per object Costs amounting to 380 EUR (Mandatory).
- over occupation (on request): per person and day Costs amounting to 30 EUR (optional).
Additional information:
- Property area: 220000 m²
- Distance to next cross-country skiing trail: 7 km
- Distance to lake: 10 km
- Distance to town (Hüttau): 3 km












![Holiday Home Exterior [winter]](https://vr-thumbs.vacationrenter.com/480/expedia/115363542/8b7ede.jpg)


![Holiday Home Exterior [winter]](https://vr-thumbs.vacationrenter.com/480/vrbo/115363542/8b7ede.jpg)
![Holiday Home Exterior [winter]](https://vr-thumbs.vacationrenter.com/480/vrbo/65400948/11ffce.jpg)














![Holiday Home Exterior [winter]](https://vr-thumbs.vacationrenter.com/480/vrbo/65400952/9a8838.jpg)

![Holiday Home Exterior [winter]](https://vr-thumbs.vacationrenter.com/480/expedia/65400952/9a8838.jpg)


