Apartment in Le Croisic
Reasons to book
About this apartment rental
Le Croisic is a charming fishing port on the wild coast of the Guérande peninsula. The region is rich in discoveries: the medieval town of Guérande, the salt marshes, La Baule…
Accessible from Paris directly by TGV.
The apartment enjoys an ideal location: the port and shops on foot, the path that goes around the peninsula, too!
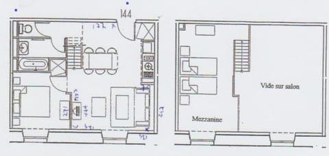
It is a duplex with a beautiful volume, of 58 square meters including 41 in Carrez law, with:
A parental bedroom (140 bed),
A large mezzanine accommodates 2 beds in 90 (attention: ceiling height 1.78m, this is why I do not count it as 2nd bedroom but it is 17 square meters)
A spacious duplex living room with sofa bed, which can be separated into 2 comfortable single beds.
A kitchenette in the living room (2 ceramic hobs, dishwasher, microwave, coffee maker, kettle, toaster)
A bathroom,
Separate WC.
The apartment is not on the sea side and does not have a terrace (which explains its reasonable price), but you can access directly from the residence to the residence's heated swimming pool as well as to the beautiful sandy beach.




























