Cottage in Normandy
Reasons to book
About this cottage rental
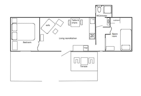
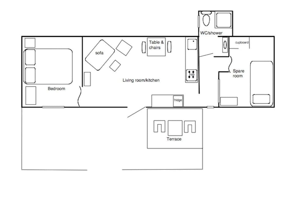
The cottage is all on one level, open-plan with exposed old stone walls. The main door enters into a lounge area with corner kitchen. Off the main room to the left is a double bedroom. Off the main room to the right, and down one step, there is a hallway giving access to a clean, compact shower room (consisting of new fittings of shower, washbasin & WC), and also another room which can be used as a bedroom and has a single bed (there is no external window in this room).
Wifi is available, so you can bring your tablet/computer (no TV in cottage). From the terrace you can sit and enjoy nature, perhaps with a cake from the local patisserie (5 mins drive) or with a glass of local Calvados (apple brandy) or speciality Normandy cider.
The cottage is set in peaceful countryside on the border of Manche and Calvados in Lower Normandy. It is ideally situated for day trips to the many tourist attractions, including Mont St Michel (World Heritage Site), The Normandy Landing beaches and war museums & memorials, the Bayeux tapestry, Coutances cathedral, Caen and Rennes city centres, the scenic villages and landscapes of Swiss Normandy, the Bell Foundry at Villedieu-les-Poeles, the beautiful Cotentin coastline, the Chanel gardens in Granville, also for day trips to Jersey, amongst others.
Sheets are provided. Please bring your own towels (we can provide towels at a small extra charge if required - please ask when booking). There is a heating/services supplement for all bookings except July and August.
Ideal for couples or two friends/relatives who want a relaxing peaceful, holiday. Also suitable for a couple (or one parent) with one child. Great for bird life, rainbows, fishing in the nearby stream, and of course visiting all the tourist sites with easy access to main routes.
Distance from the ferry ports: Caen it is about 55 mins drive; Cherbourg - just over an hour; Le harvre - 1 hour 50 mins drive; Dieppe 2.5 hours drive.




































