Apartment in Nordfriesland
Reasons to book
About this apartment rental
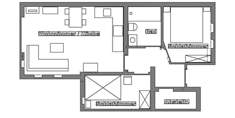
Your apartment is located on the ground floor and is equipped with a size of 50 m² for up to 4 people. Your apartment has 2 bedrooms, living room with fully equipped kitchenette and dining area, shower room, storage room and terrace.
Only three minutes walk to the promenade and the large beach. In the immediate vicinity are the park at the mill and all recreation and shopping, cafes and restaurants. The ferry port is reached in a few minutes on foot.
Further: Free Internet connection via WLAN, flat rate to German landlines, cable TV, double bed Dimensions 180 x 200 cm, franc. Bed 140 x 200 cm, washing machine and dryer (extra charge), cot and highchair (on request for a fee)
Optional services:
- Bathrobe (rental fee) 12. 22 EUR per person per stay
- Dog 5.83 EUR per night
- Highchair 6. 11 EUR per stay
- travel cot (without inlay and linen) 6. 11 EUR per stay




































