Cabin in West Yellowstone, MT
Reasons to book
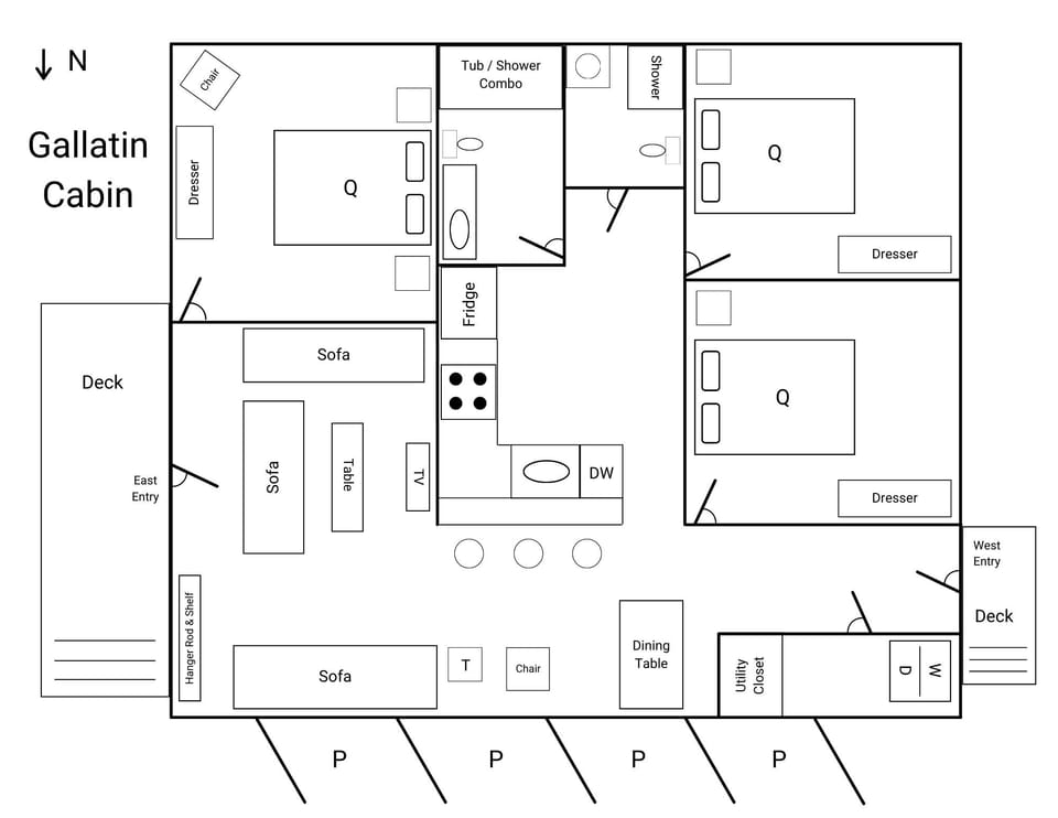
About this cabin rental
There are 3 queen beds in 3 bedrooms. The house has a washer and dryer inside for your personal convenience. The Gallatin Cabin is located right in the middle of town and an easy walk to shopping, restaurants, and the Yellowstone IMAX Theatre. Within short driving distance is a number of great fishing spots, including the famed blue ribbon trout fishery, the Madison River!
If you cross country ski or snowmobile, you can access trails from the cabin. This is as close to home as you can get while on vacation!
Keywords: Cabin/House





