Cabin in Wasatch County
Reasons to book
About this cabin rental
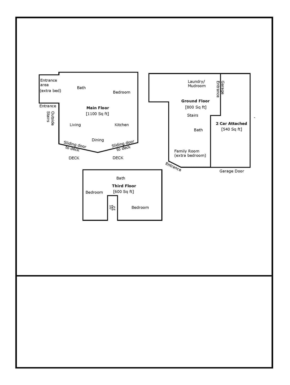
Beautiful wood floors and wood accents throughout make this home a truly mountain experience. Large great room with a wood burning fireplace is perfect for entertaining; step out onto the large deck with stunning views of the mountains. The private 5 person hot tub is awaiting you after a long day of skiing and snowboarding. The Family room is great place for relaxing and watching TV.
On the top level there are 2 bedrooms. The bedroom on the right has a queen bed and a set of bunks. The bedroom on the left has a queen bed. There is a bathroom on that floor with 2 sinks and a shower with double shower heads.
On the main level there is a bedroom with a queen bed, a small private room with a full bed. Full bathroom on main floor.
The lower level has a private family room with sofa sleeper and king bed. There is also a full bath.
For our guests safety, as well as security of the property, there are two security monitor/light systems outside the home. One is above the garage door, and one is near the outside stairs.
Get Away From It All and Make Lasting Memories in This Beautiful Area!
Keywords: Cabin Home





