Apartment in Le Grand-Bornand
Reasons to book
About this apartment rental
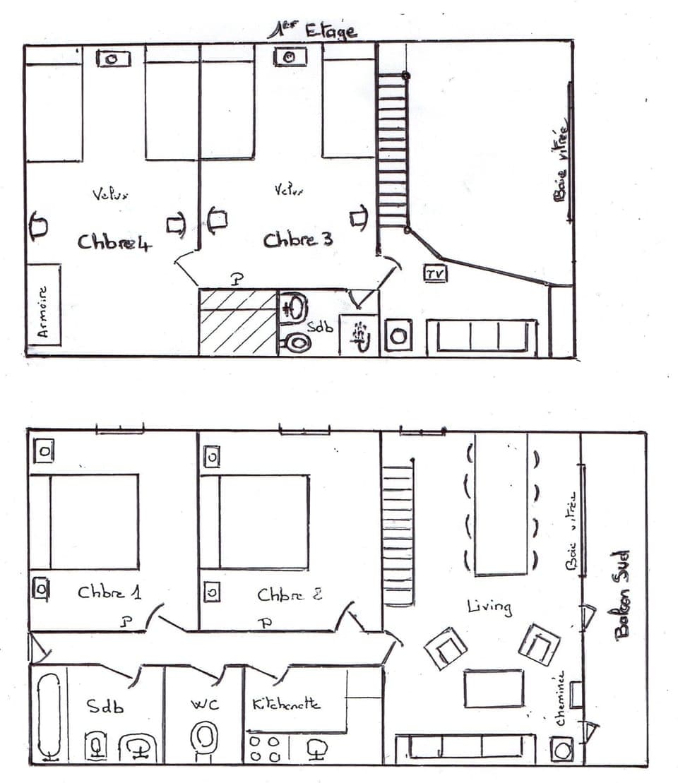
By entering a long hallway which distributes left 2 couples rooms and on the right a bathroom, a separate toilet, a fully equipped kitchenette.
Down the hall you come to a large living room which is perpendicular to it, very sunny and "bright" with two large windows overlooking a south facing balcony facing the Aravis range and on the view side of the village.
On the right a sitting area, equipped with a fireplace to firewood, a sofa, a coffee table, chairs and left a dining area for including a table for 8 people.
The living room is equipped with a Samsung 140 cm flat screen home theater with a CD, DVD, Blue Ray, MP3 player (160 TV channels)
A staircase along the wall gives access to a mezzanine overlooking the living room and gives access to two other consecutive rooms, equipped with wide skylights with possibility of occultation, each with 2 beds of 90 and a bathroom including: washbasin, shower, wc.
WIFI throughout the apartment and ample free parking outside the residence.
DISCOUNT ON SKI RENTALS OF 20% DURING SCHOOL PERIODS AND 30% OFF SCHOOL PERIODS ... SWIMMING POOL SUMMER: 40%
FREE APPERITIVES IN BRANCHES RESTAURANTS ... !!!!
A GUEST CARD YOU WILL BE GIVEN AT THE PAYMENT YOU GIVE MANY DISCOUNTS ON STATION INCLUDING THE PASSING A FREE SHUTTLE SET TIMES AT THE FOOT OF THE RESIDENCE
DETAILED DESCRIPTION SEND, PHOTOS AND PRICES ON REQUEST BY E-MAIL





